Закрыть галерею
Изображение 22 из 23

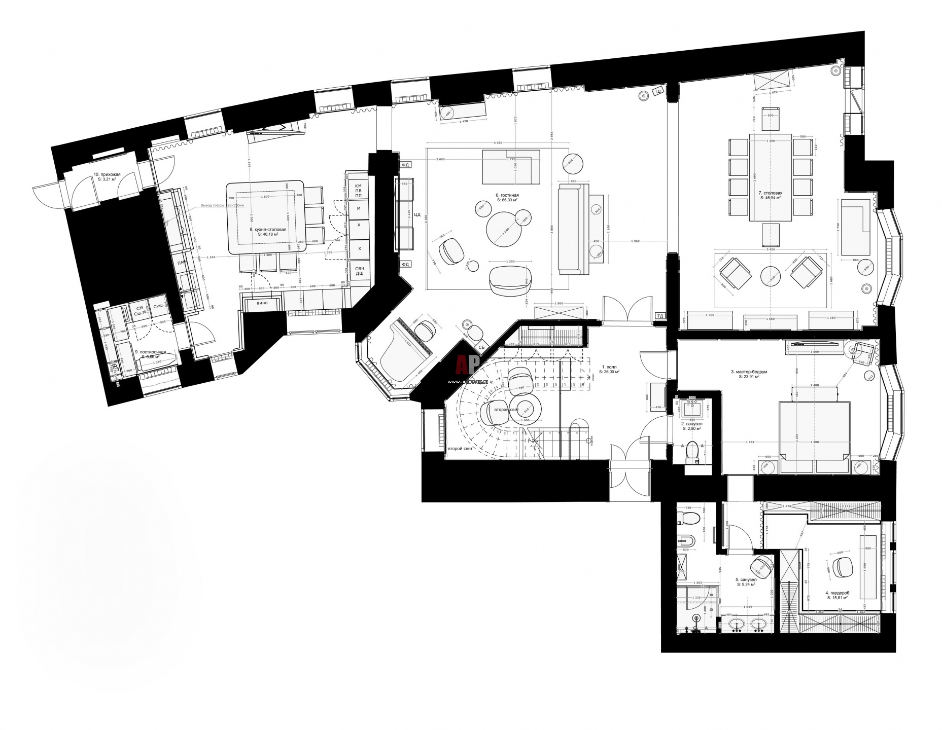
Планировка 1 этажа 2-х уровневой квартиры для большой семьи в центре Москвы.

План первого этажа двухэтажной квартиры в историческом доходном доме. Общая площадь - 482 кв. м.

Проект: Интерьер квартиры с четырехметровыми потолками, классической гипсовой лепниной и французским флером
Автор проекта: Широкова Дарья, Аршба Инга
Соавтор(ы): Елена Чижова
Объект: Двухуровневая квартира в доходном доме
Общая площадь: 482 кв.м.