Закрыть галерею
Изображение 30 из 31

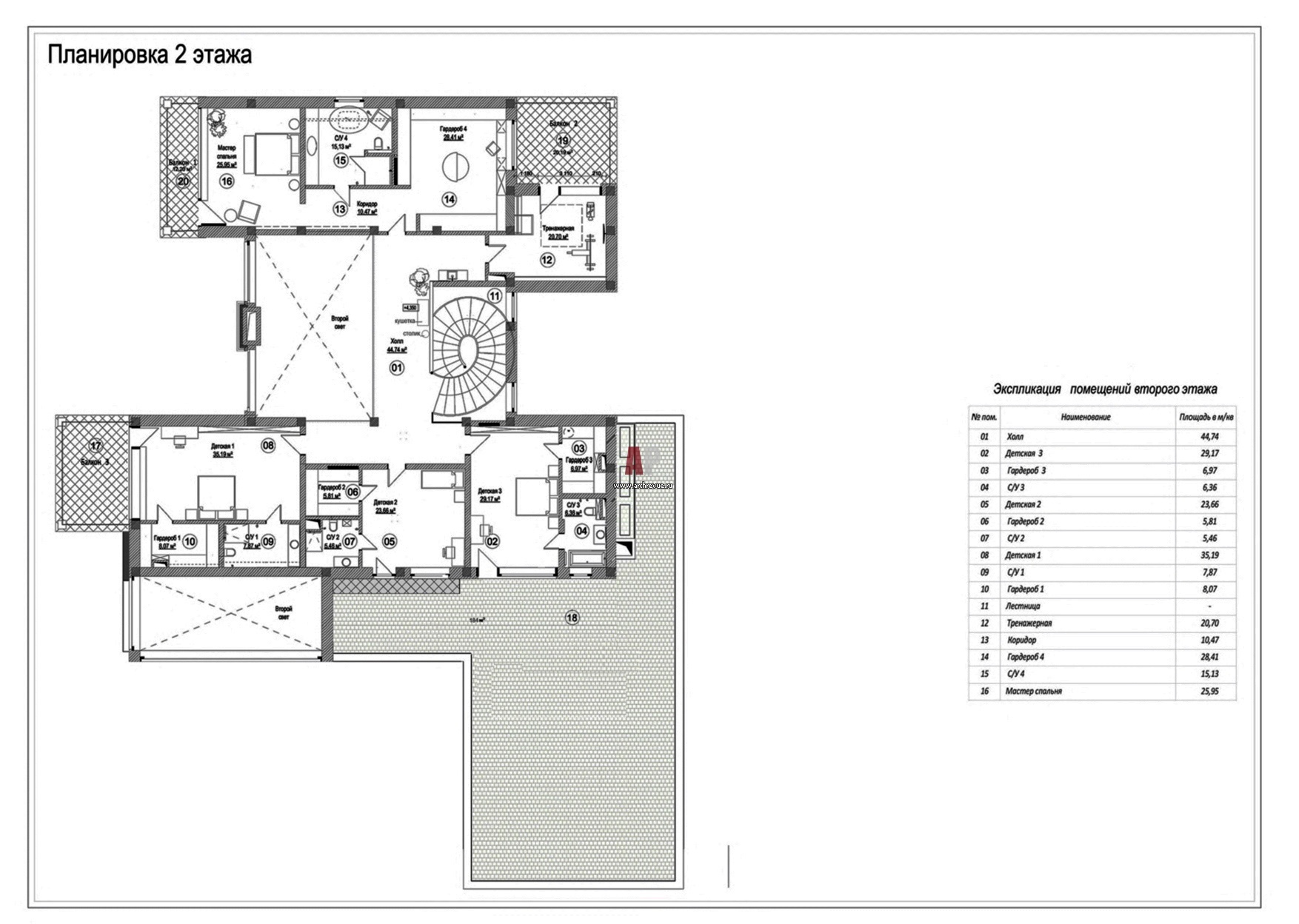
Планировка 2 этажа 2-х этажного современного дома в поселке «Монтевиль».

План второго этажа большого двухэтажного дома в духе архитектуры Ф. Л. Райта. Общая площадь - 1200 кв. м.

Проект: Большой двухэтажный семейный дом в лесу
Автор проекта: Круглов Николай, Круглова Ксения
Объект: Харизматичный дом в Подмосковье
Общая площадь: 1200 кв.м.