Закрыть галерею
Изображение 18 из 19

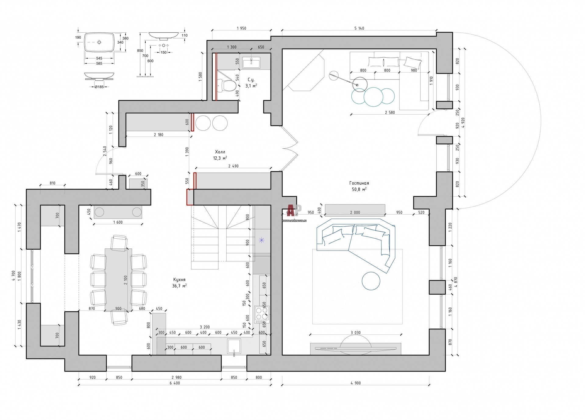
Планировка 1 этажа виллы в стиле фьюжн.

План первого этажа двухэтажной реконструированной исторической виллы в Калининграде. Общая площадь – 180 кв. м.

Проект: Двухэтажная вилла в стиле фьюжн в Калининграде
Автор проекта: Петерсон Владислава, Забанова Наталья
Объект: Вилла на Балтике
Общая площадь: 180 кв.м.