Закрыть галерею
Изображение 18 из 19

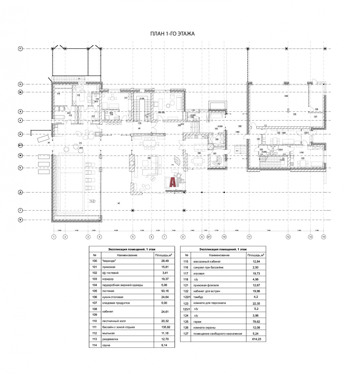
План первого этажа с антресольным уровнем семейного дома в современном стиле.

Планировка первого этажа с двухсветной гостиной, антресолью и СПА-комплексом с бассейном. Общая площадь дома – 1500 кв. м.

Проект: Жилой дом Hampton house
Автор проекта: Леонидов Роман, Волгина Елена
Соавтор(ы): Сандакова Ольга
Объект: Дом на просвет
Общая площадь: 1500 кв.м.