Закрыть галерею
Не удалось загрузить картинку
Изображение
22
из
23
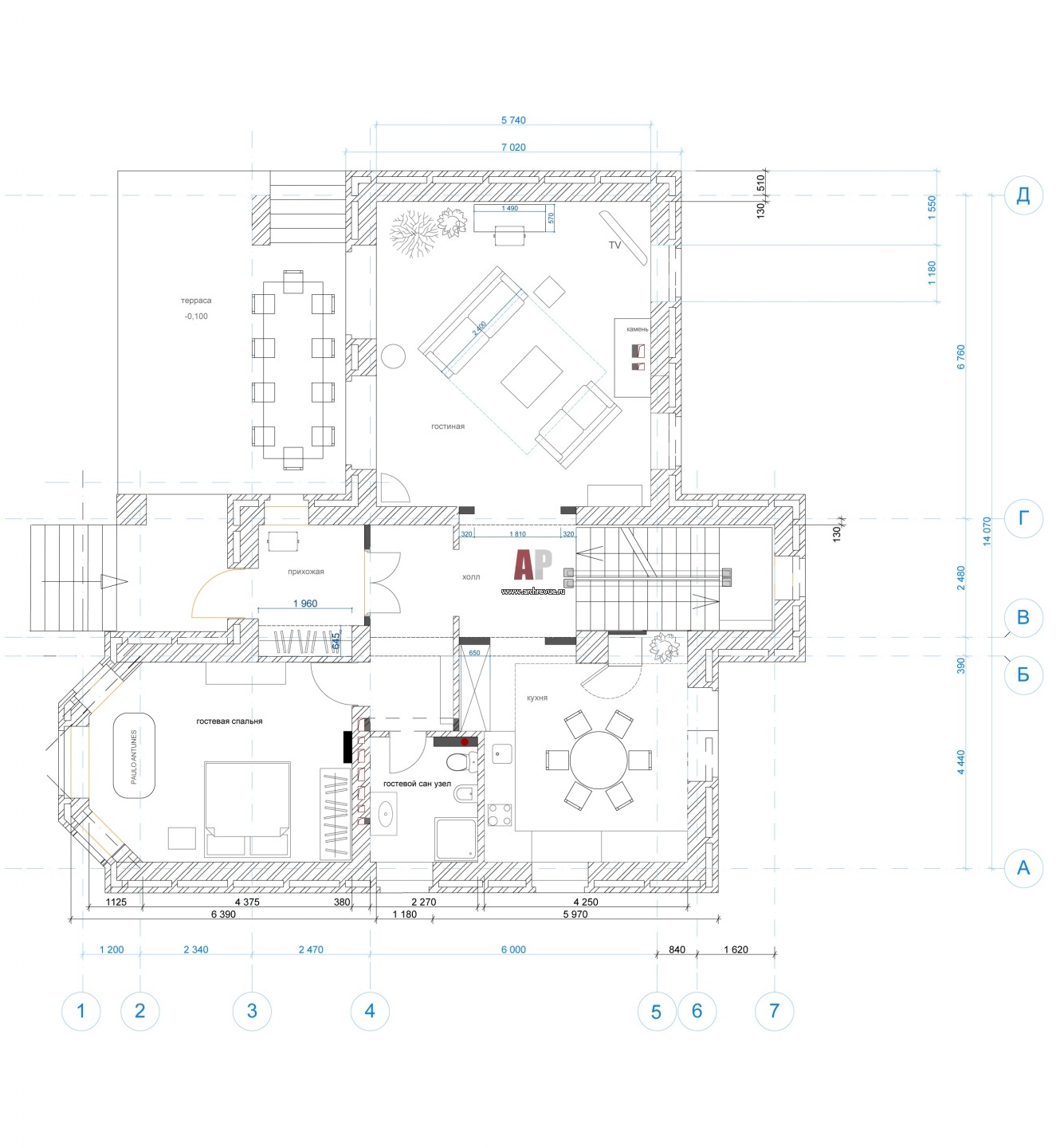
Планировка 1 этажа 2-х этажного загородного дома общей площадью 309 кв. м.
План первого этажа 2-х этажного дома на Клязьме.
Проект:
Дом на Клязьме с элементами кантри, английского стиля и фольклорными мотивами
Автор проекта:
Гончар Ольга
,
Лобынцева Софья
Соавтор(ы):
Хазов Владимир
Объект:
Дом с фольклорными мотивами
Общая площадь:
309 кв.м.
ВКонтакте
Одноклассники
Telegram
Viber
WhatsApp
Pinterest
ё
1
2
3
4
5
6
7
8
9
0
-
=
й
ц
у
к
е
н
г
ш
щ
з
х
ъ
\
ф
ы
в
а
п
р
о
л
д
ж
э
я
ч
с
м
и
т
ь
б
ю
.