Закрыть галерею
Изображение 28 из 29

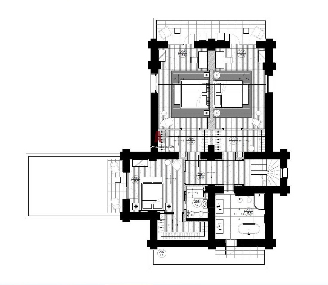
Планировка 2 этажа 3-х этажного коттеджа в Сочи.

План второго этажа трехэтажного дома для отдыха и катания на лыжах. Общая площадь: 470 кв. м.

Проект: Интерьер деревянного дома в стиле современного ар-деко
Автор проекта: Качалов Иван, Метёлкин Игорь
Объект: Деревянный дом в Сочи
Общая площадь: 470 кв.м.