Закрыть галерею
Изображение 33 из 34

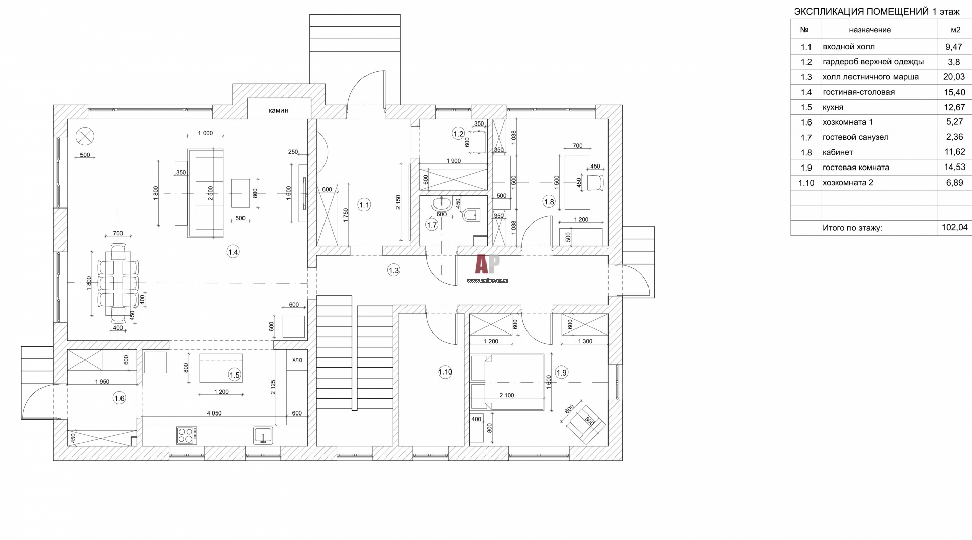
План первого этажа двухэтажного дома в Подмосковье. Общая площадь – 295 кв. м.

Планировка 1 этажа 2-х этажного дома для семьи с двумя детьми. 

Проект: Двухэтажный эклектичный дом для ценителя китайской культуры
Автор проекта: Татарникова Ирина
Объект: Китайский дом в Подмосковье
Общая площадь: 295 кв.м.