Закрыть галерею
Изображение 18 из 18

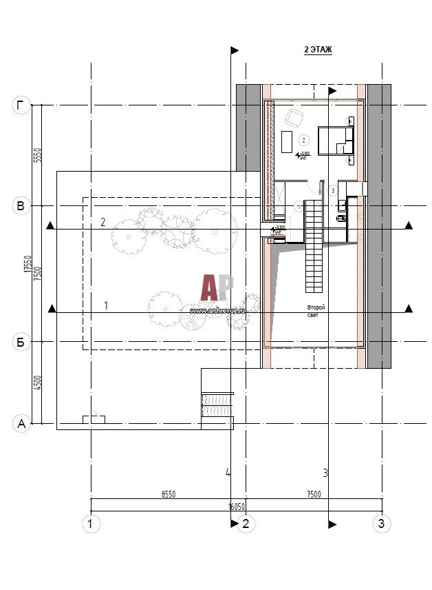
План второго этажа двухэтажного гостевого треугольного дома. Общая площадь - 188 кв. м.

Планировка 2 этажа 2-х этажного дома с авторской архитектурой на Николиной Горе. 

Проект: Двухэтажный гостевой дом с острой кровлей и стеклянными фасадами
Автор проекта: Басков Максим
Соавтор(ы): Аль Таяр Александра, Сажина Наталья
Объект: Треугольный дом на Николиной Горе
Общая площадь: 188 кв.м.