Закрыть галерею
Изображение 19 из 20

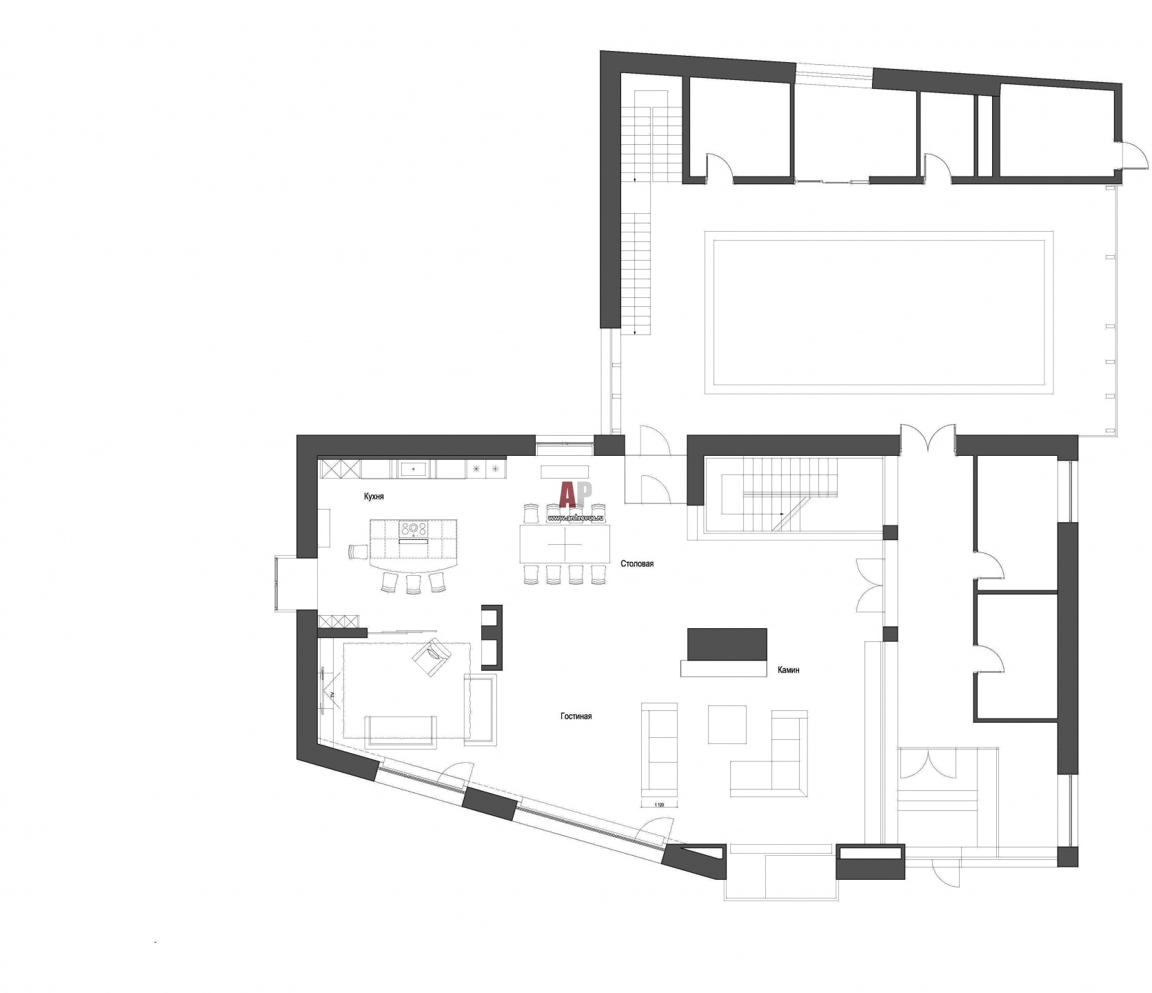
Планировка 1 этажа 2-х этажного дома с современной минималистской архитектурой.

План первого этажа двухэтажного дома с бассейном. Общая площадь – 1300 кв. м.

Проект: Зеркала и глянец. Светлый дом в современном стиле для молодой семьи
Автор проекта: Фрейман Ольга
Объект: Дом с парадной обстановкой
Общая площадь: 1300 кв.м.