Закрыть галерею
Изображение 13 из 14

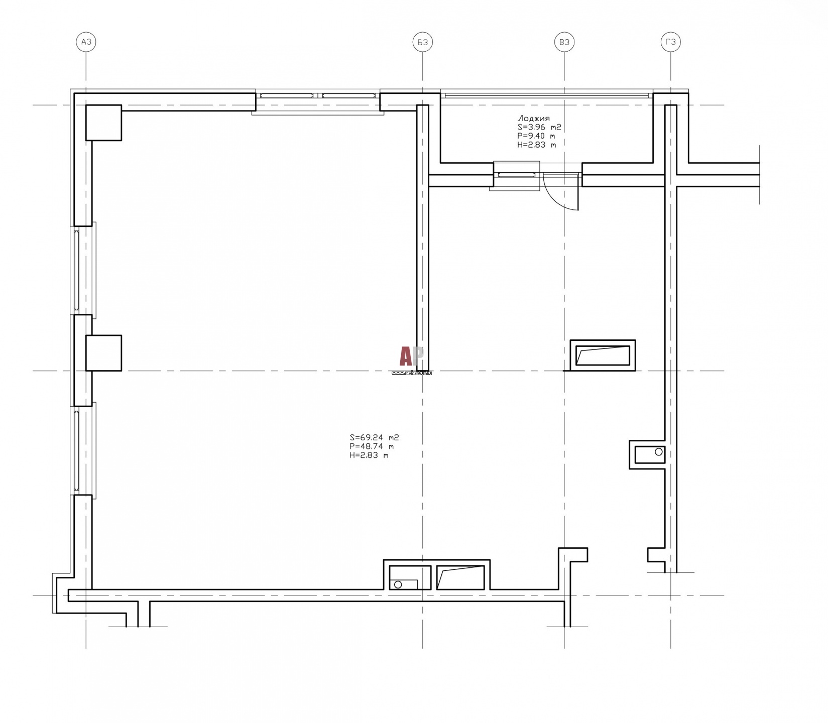
План двухкомнатной квартиры 67,81 кв. м до перепланировки.

Исходная планировка квартиры 67, 81 кв. м. с окнами по двум строонам и лоджией 3,96 кв. м.

Проект: Небольшая двухкомнатная квартира для молодой семьи
Автор проекта: Стащук Татьяна
Объект: Квартира с библиотекой
Общая площадь: 67, 81 кв.м.