Закрыть галерею
Изображение 22 из 23

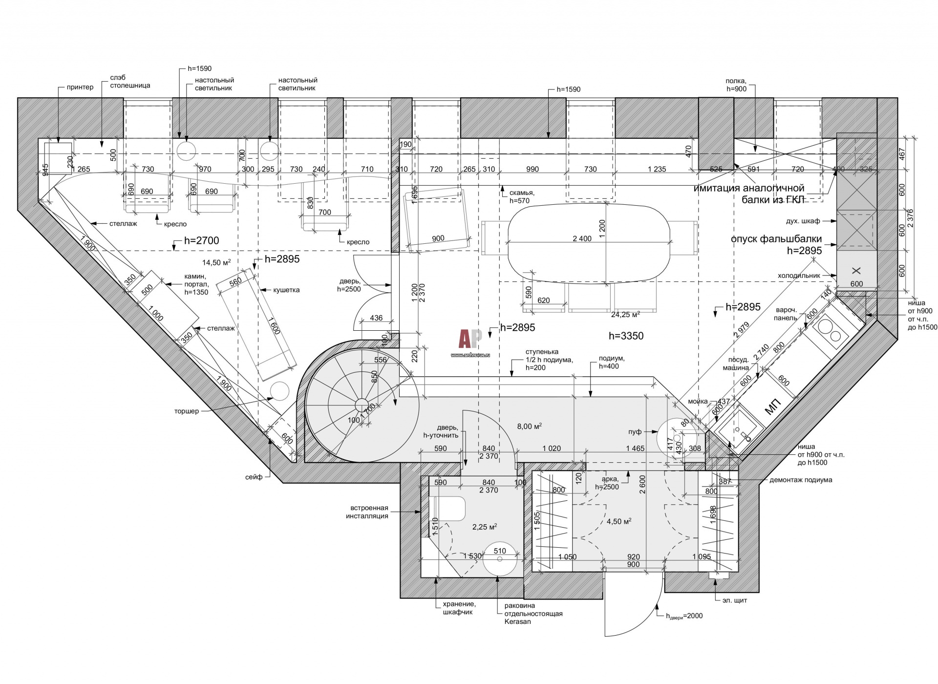
План первого этажа двухэтажной квартиры в историческом доме на Патриарших прудах. Общая площадь – 127 кв. м.

 Планировка 1 этажа 2-х этажной мансардной квартиры в историческом доме.

Проект: Артистичная двухэтажная квартира на Патриарших прудах
Автор проекта: Круглов Николай, Круглова Ксения
Объект: Мансардная квартира с антиквариатом
Общая площадь: 127 кв.м.