Закрыть галерею
Изображение 17 из 17

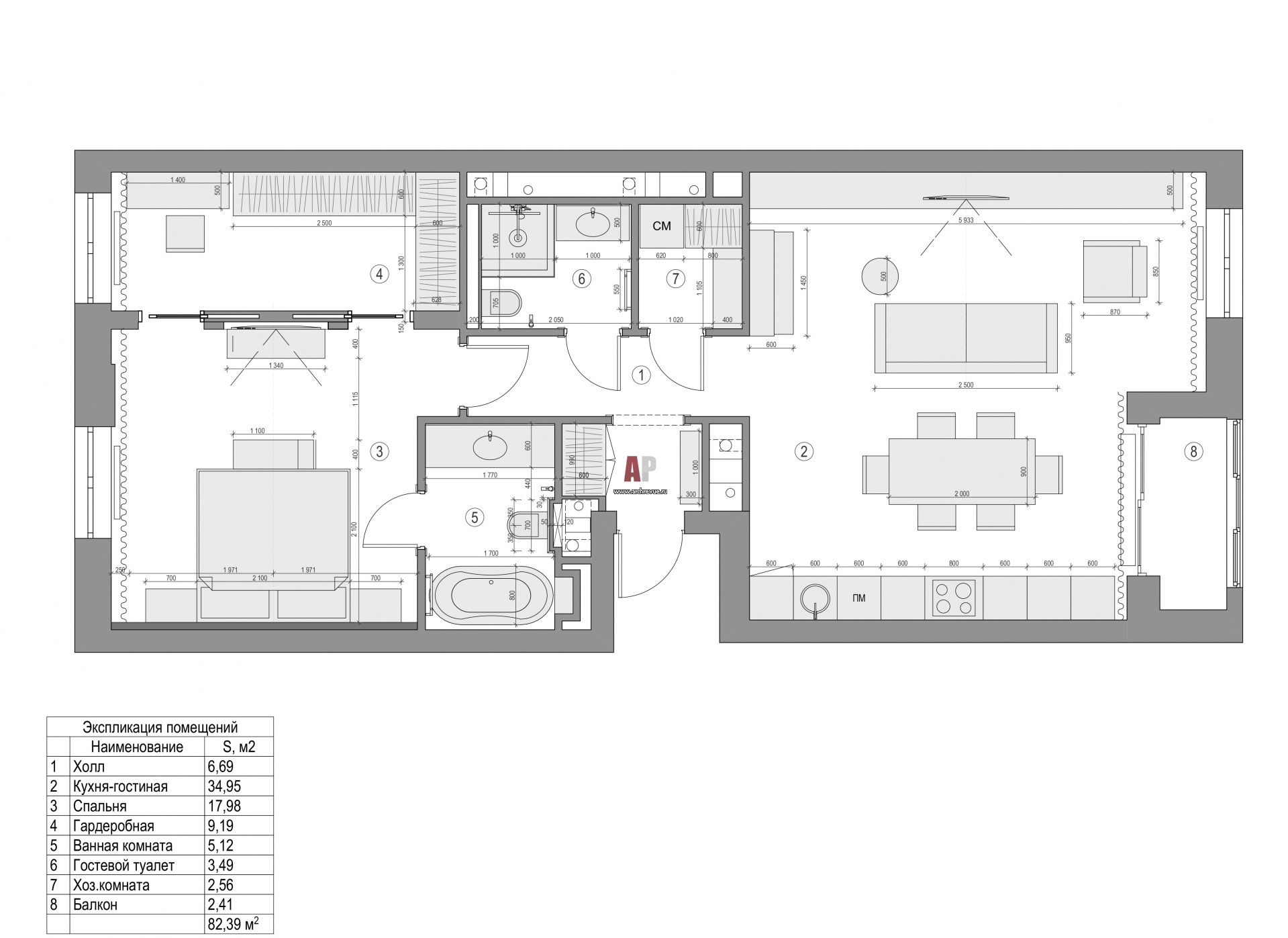
Планировка двухкомнатной квартиры в новостройке. Общая площадь – 86 кв. м.

План небольшой 2-х комнатной квартиры. 

Проект: Интерьер двухкомнатной квартиры с теплыми фактурами и деревом
Автор проекта: Салахова Дина
Объект: Квартира в стиле дорогого отеля
Общая площадь: 86 кв.м.