Закрыть галерею
Изображение 15 из 15

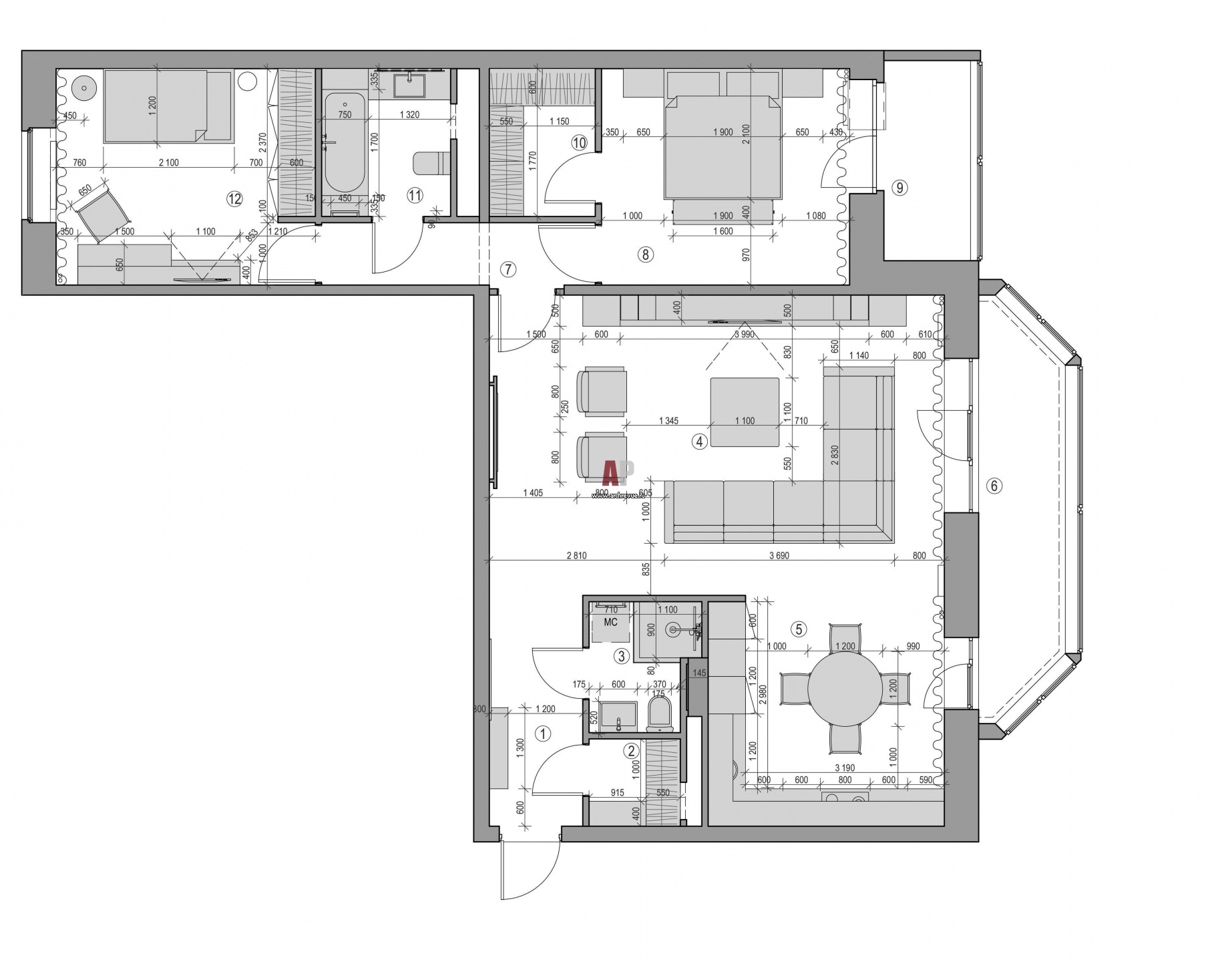
План небольшой 3-х комнатной квартиры с проходной гостиной.

План трехкомнатной квартиры в высотке на Мосфильмовской. Общая площадь – 100 кв. м.

Проект: Рациональный интерьер в современной высотке
Автор проекта: Салахова Дина
Объект: Семейная квартира на Мосфильмовской
Общая площадь: 100 кв.м.