Закрыть галерею
Изображение 20 из 20

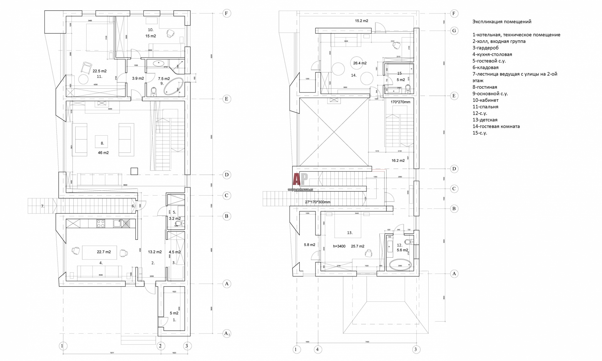
Планировка 2-х этажного дома 500 кв. м с двумя лестничными холлами в стиле минимализм.

Поэтажный план современного двухэтажного дома в поселке Борки. Общая площадь- 500 кв. м. Архитектор - Максим Кашин.

Проект: Современный дом в поселке Борки
Автор проекта: Кашин Максим
Объект: Функциональный минимализм
Общая площадь: 500 кв.м.