Закрыть галерею
Изображение 33 из 33

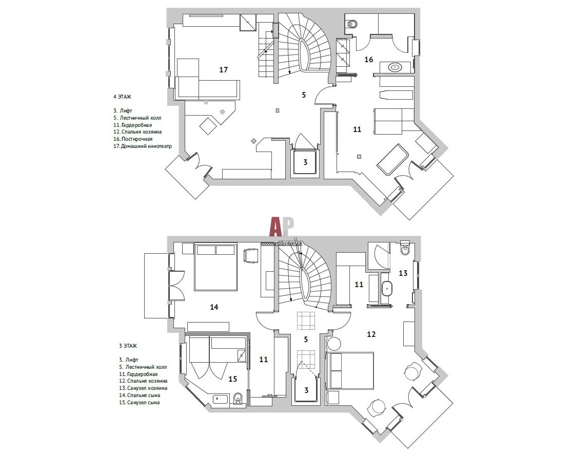
Планировка 3 и 4 этажа 4-х этажного дома в Подмосковье.

План третьего и четвертого этажей четырехэтажного дуплекса в Довиле. Общая площадь – 330 кв. м.

Проект: Элегантный четырехэтажный дуплекс в поселке «Довиль»
Автор проекта: Анельгольм Анна, Матвеева Светлана
Объект: Нормандский дом в Подмосковье
Общая площадь: 330 кв.м.