Закрыть галерею
Изображение 27 из 27

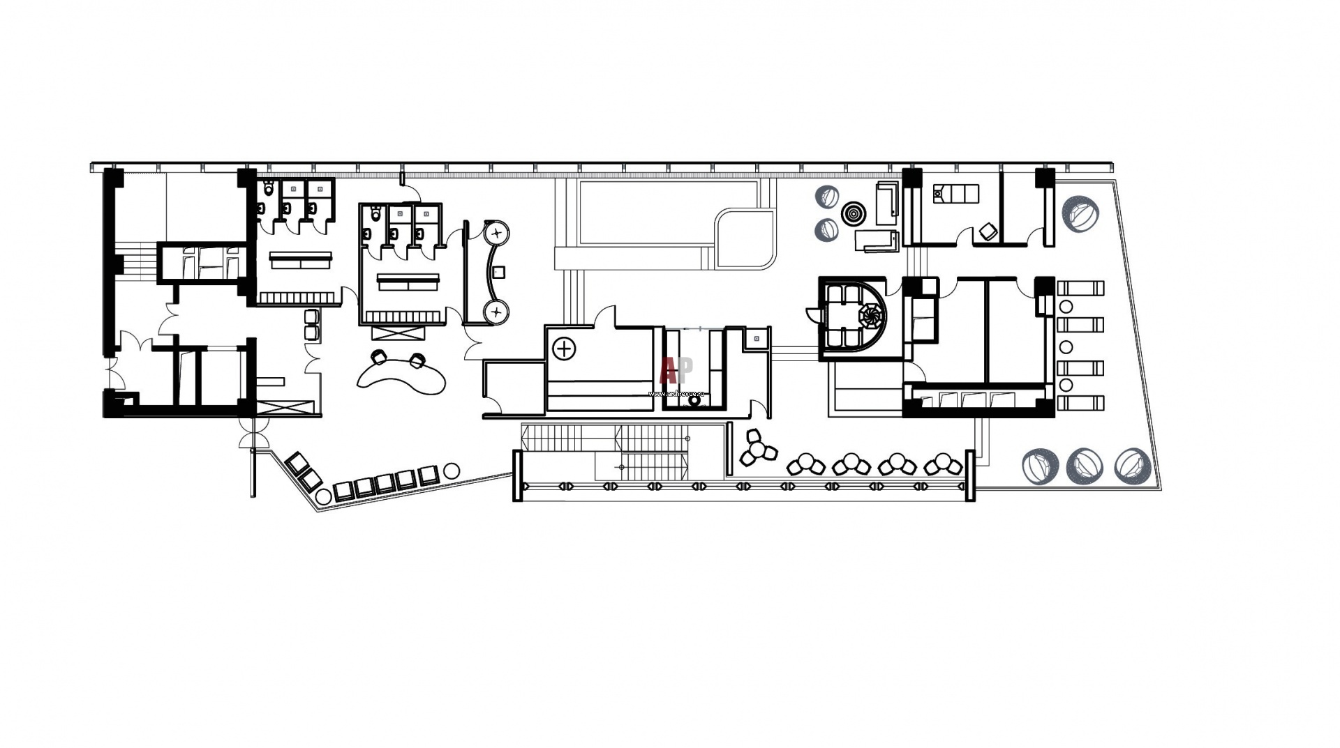
План третьего этажа со СПА-сьютом Дворца водных видов спорта «Лужники».

Планировка 3 этажа Дворца водных видов спорта в Лужниках. 

Проект: Классика и соцреализм. Дворец водных видов спорта в Лужниках
Автор проекта: Борисов Юлий, Тряскина Юлия
Объект: Дворец водных видов спорта «Лужники»
Общая площадь: 56 500 кв.м.