Закрыть галерею
Изображение 12 из 13

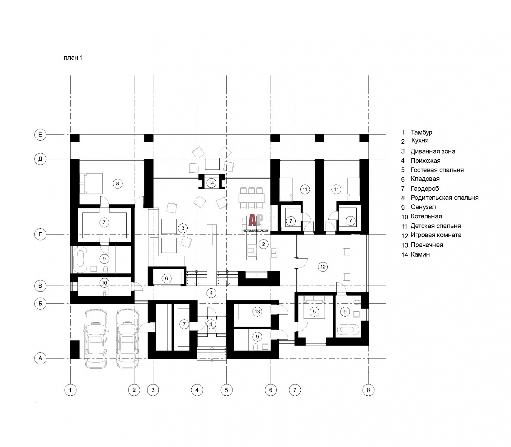
Планировка жилого пространства одноэтажного дома.

План одноэтажного жилого дома из кирпича. Общая площадь - 380 кв. м.

Проект: Гостевой дом в Ростовской области с открытым бассейном
Автор проекта: Задорожний Евгений, Пигулевский Олег
Объект: Дом для отдыха
Общая площадь: 380 кв.м.