Закрыть галерею
Изображение 27 из 27

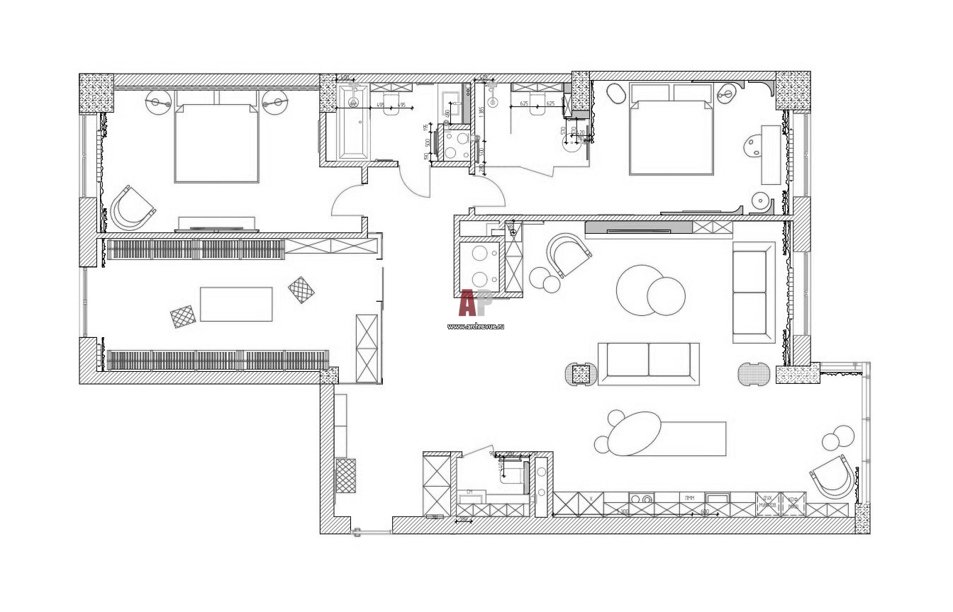
Перепланировка чытерхкомнатной квартиры в ЖК премиум-класса. Общая площадь - 150 кв. м.

План перепланировки 4-х комнатной квартиры в новостройке. 

Проект: Стильный монохром. Квартира в ЖК KARLSHOF, Калининград
Автор проекта: Чашкина Алена
Объект: Современная квартира с элементами ар-деко в Калининграде
Общая площадь: 150 кв.м.