Закрыть галерею
Изображение 31 из 33

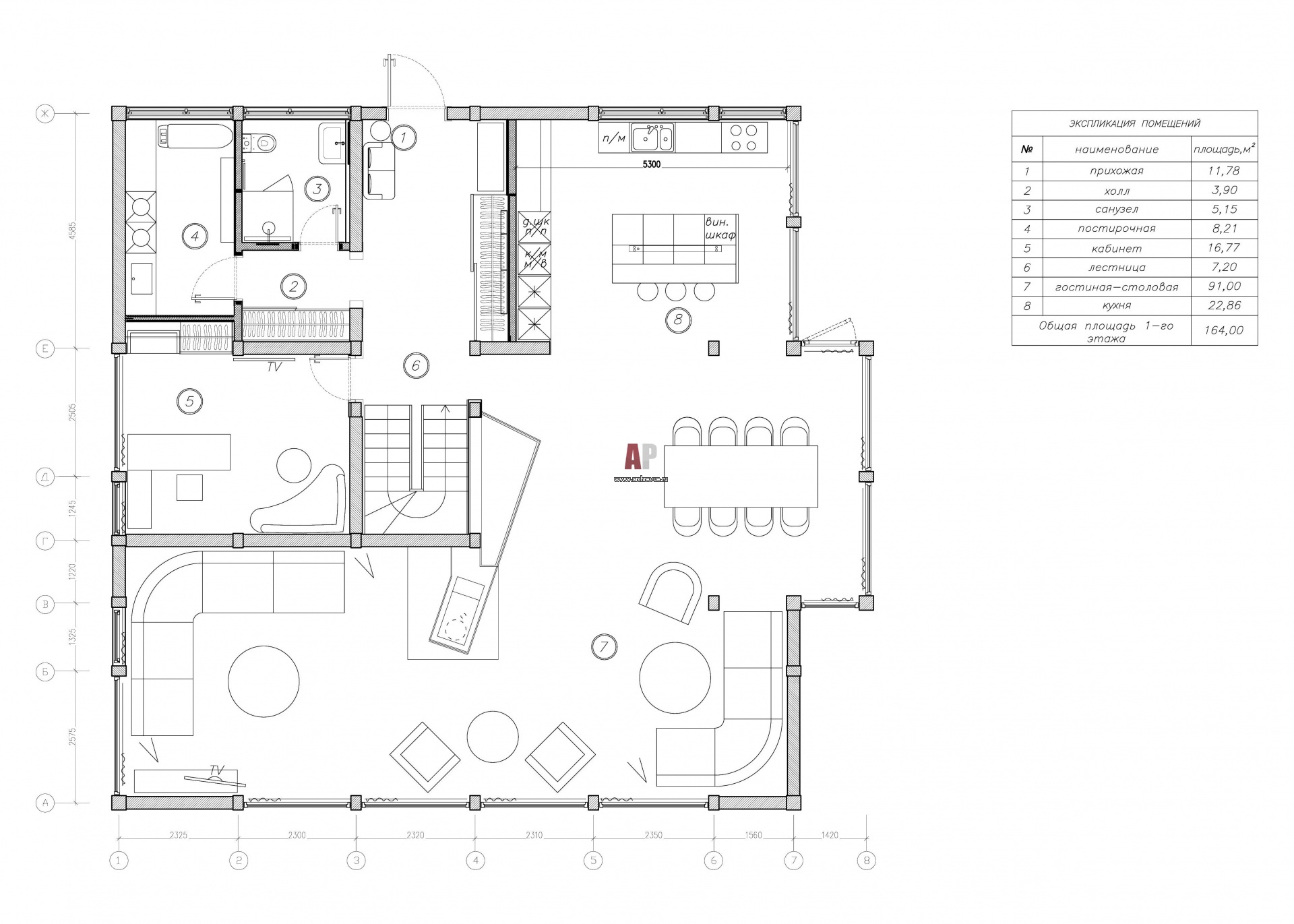
Планировка первого этажа деревянного дома в стиле фьюжн в Репино.

План 1 этажа загродного деревянного дома со СПА-комплексом. Общая площадь - 900 кв.м.

Проект: Загородный дом со СПА-комплексом в Рощино
Автор проекта: Казаковцева Александра, Махонина Мария
Объект: Дом из бруса с северным колоритом
Общая площадь: 900 кв.м.