Закрыть галерею
Изображение 23 из 23

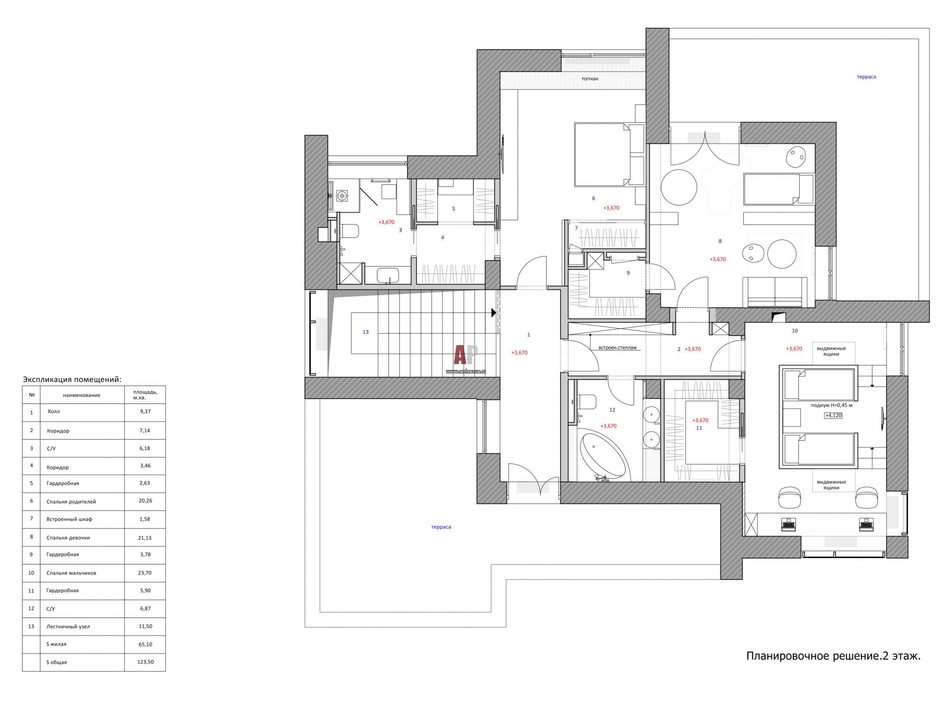
Планировка 2 этажа небольшого 2-х этажного семейного дома в Подмосковье.

План второго этажа двухэтажного жилого дома для молодой семьи с тремя детьми. Общая площадь – 280 кв. м.

Проект: Современный интерьер дома на Новой Риге для молодой семьи с тремя детьми
Автор проекта: Пискарева Юлия
Соавтор(ы): Ушаков Станислав
Объект: Комфортный минимализм
Общая площадь: 280 кв.м.