Закрыть галерею
Изображение 19 из 19

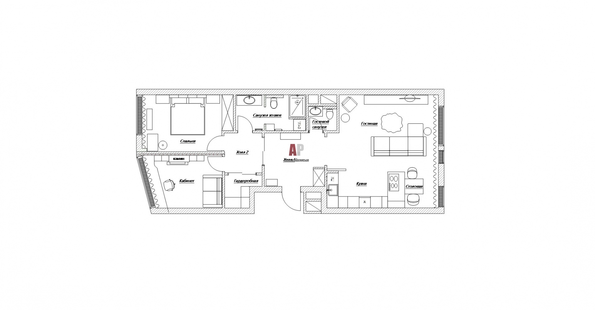
Планировка апартаментов для взрослой семейной пары.

План трехкомнатной квартиры в комплексе апартаментов на Воробьевых горах. Общая площадь – 82 кв. м.

Проект: Светлый и легкий интерьер квартиры для пары элегантного возраста
Автор проекта: Лапшова Ольга
Объект: Видовая квартира на Воробьевых горах
Общая площадь: 82 кв.м.