Закрыть галерею
Изображение 25 из 25

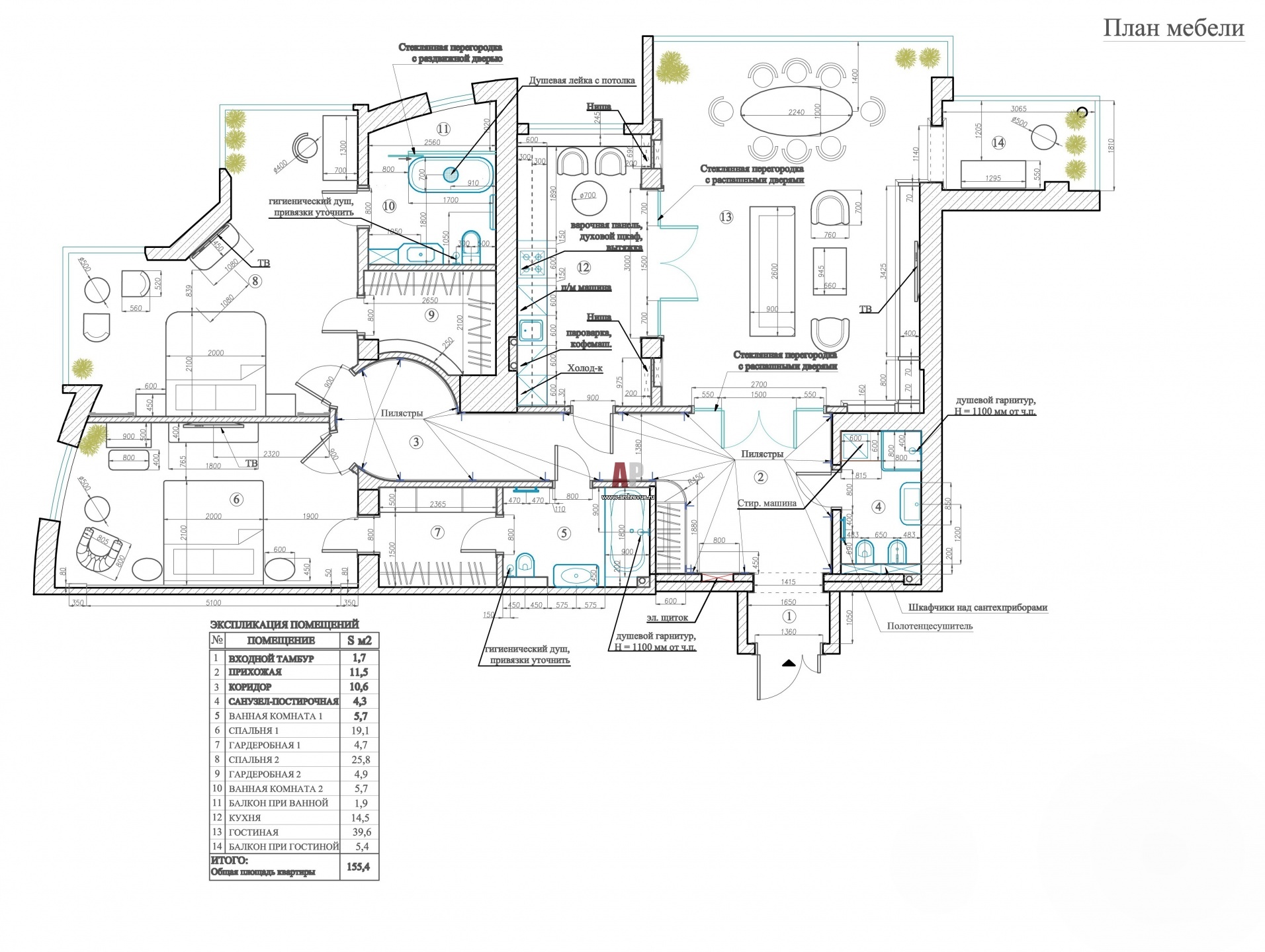
Планировка большой трешки с панорамными окнами в элитном жилом комплексе.

План трехкомнатной квартиры в ЖК «Диадема» в Санкт-Петербурге. Общая площадь – 150 кв. м.

Проект: Белоснежная квартира с элементами американской классики и викторианского стиля
Автор проекта: Комогорцев Иван, Комогорцева Вероника
Объект: Американская квартира на Крестовском острове
Общая площадь: 150 кв.м.