Закрыть галерею
Изображение 31 из 32

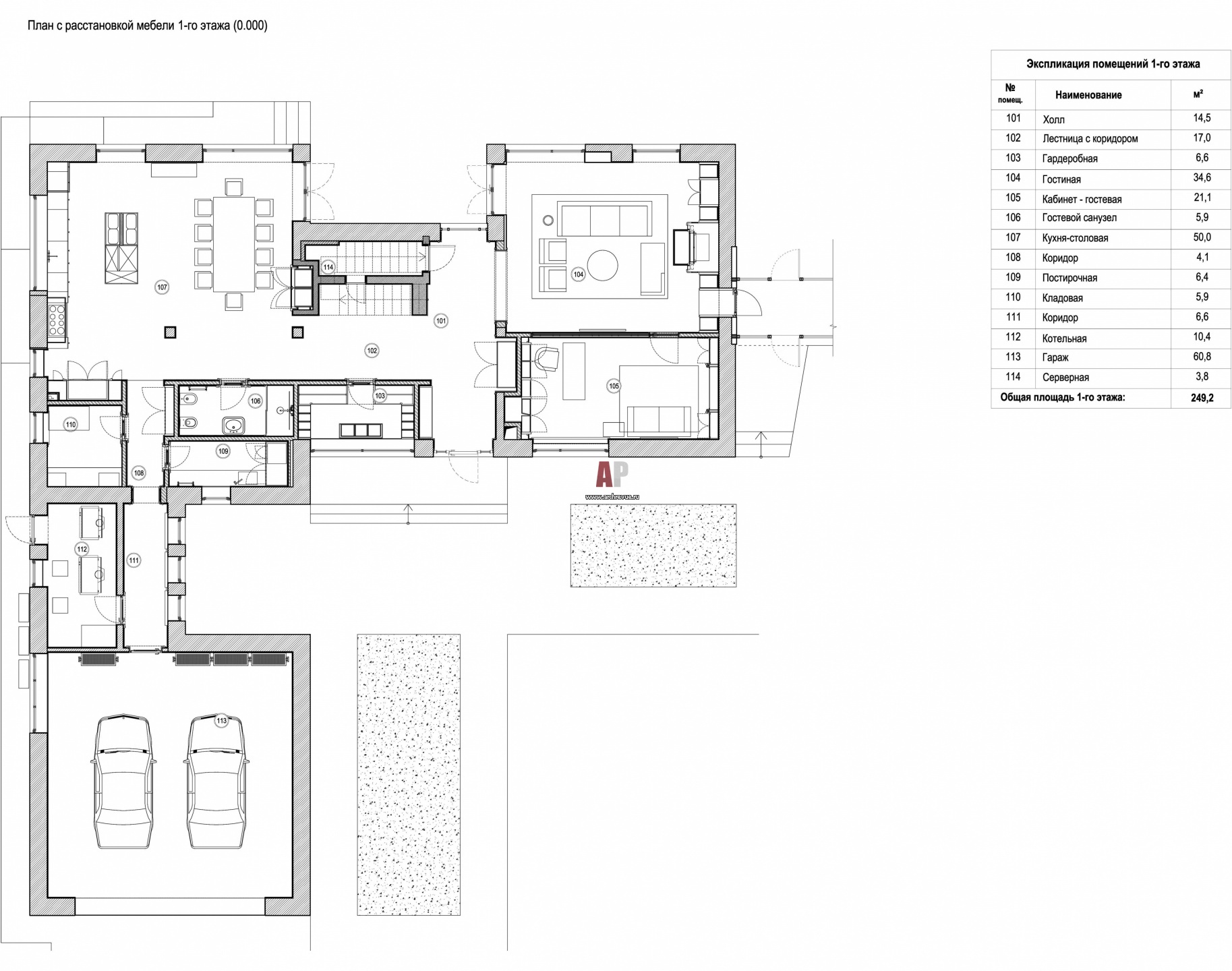
Планировка 1 этажа 2-х этажного семейного коттеджа в Подмосковье.

План первого этажа двухэтажного жома с большой детской зоной. Общая площадь – 425 кв. м.

Проект: Дом для большой семьи с детским этажом
Автор проекта: Клодт Олег, Агапова Анна
Объект: Эклектичный семейный дом в Подмосковье
Общая площадь: 600 кв.м.