Закрыть галерею
Изображение 23 из 23

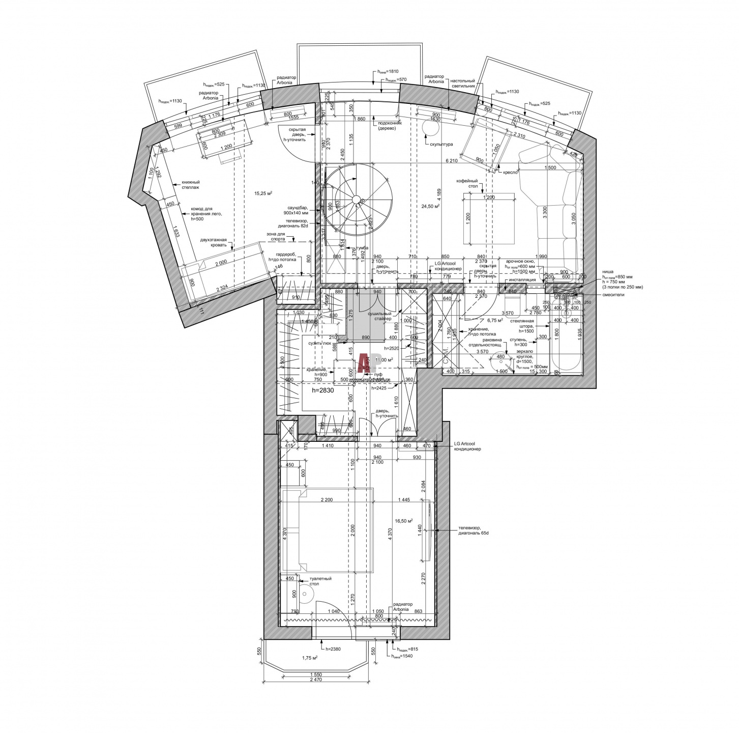
План второго этажа двухэтажной квартиры в историческом доме на Патриарших прудах. Общая площадь – 127 кв. м.

Планировка 2 этажа 2-х этажной мансардной квартиры в историческом доме. 

Проект: Артистичная двухэтажная квартира на Патриарших прудах
Автор проекта: Круглов Николай, Круглова Ксения
Объект: Мансардная квартира с антиквариатом
Общая площадь: 127 кв.м.