Закрыть галерею
Изображение 20 из 21

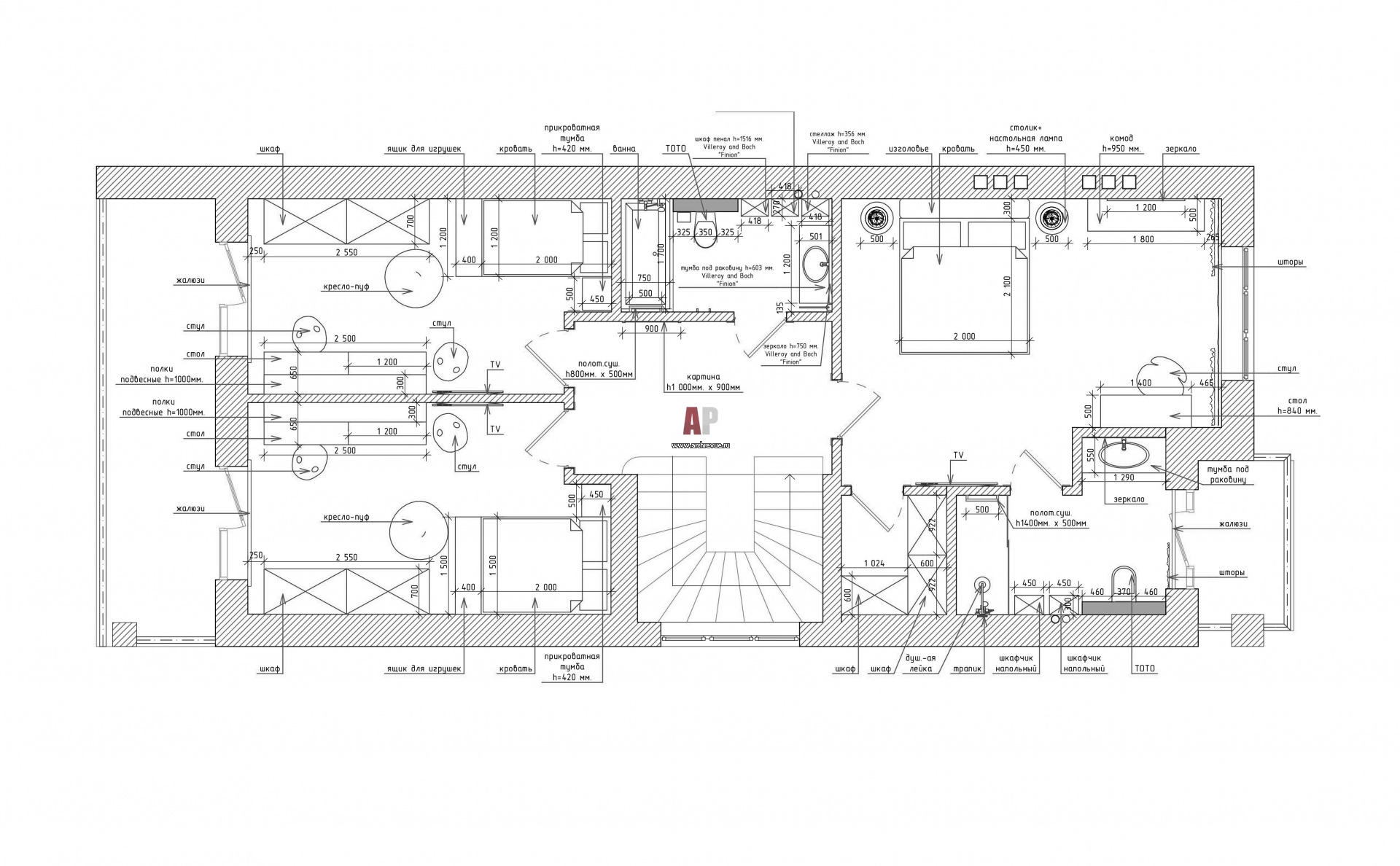
Планировка 2 этажа 3-х этажного таунхауса в клубном комплексе «Легенды Озера», Калининград.

План второго этажа трехэтажного таунхауса в Калининграде. Общая площадь – 350 кв. м.

Проект: Трехэтажный таунхаус в стиле ар-деко
Автор проекта: Чашкина Алена
Объект: Таунхаус на Балтике с праздничным настроением
Общая площадь: 350 кв.м.