Закрыть галерею
Изображение 21 из 21

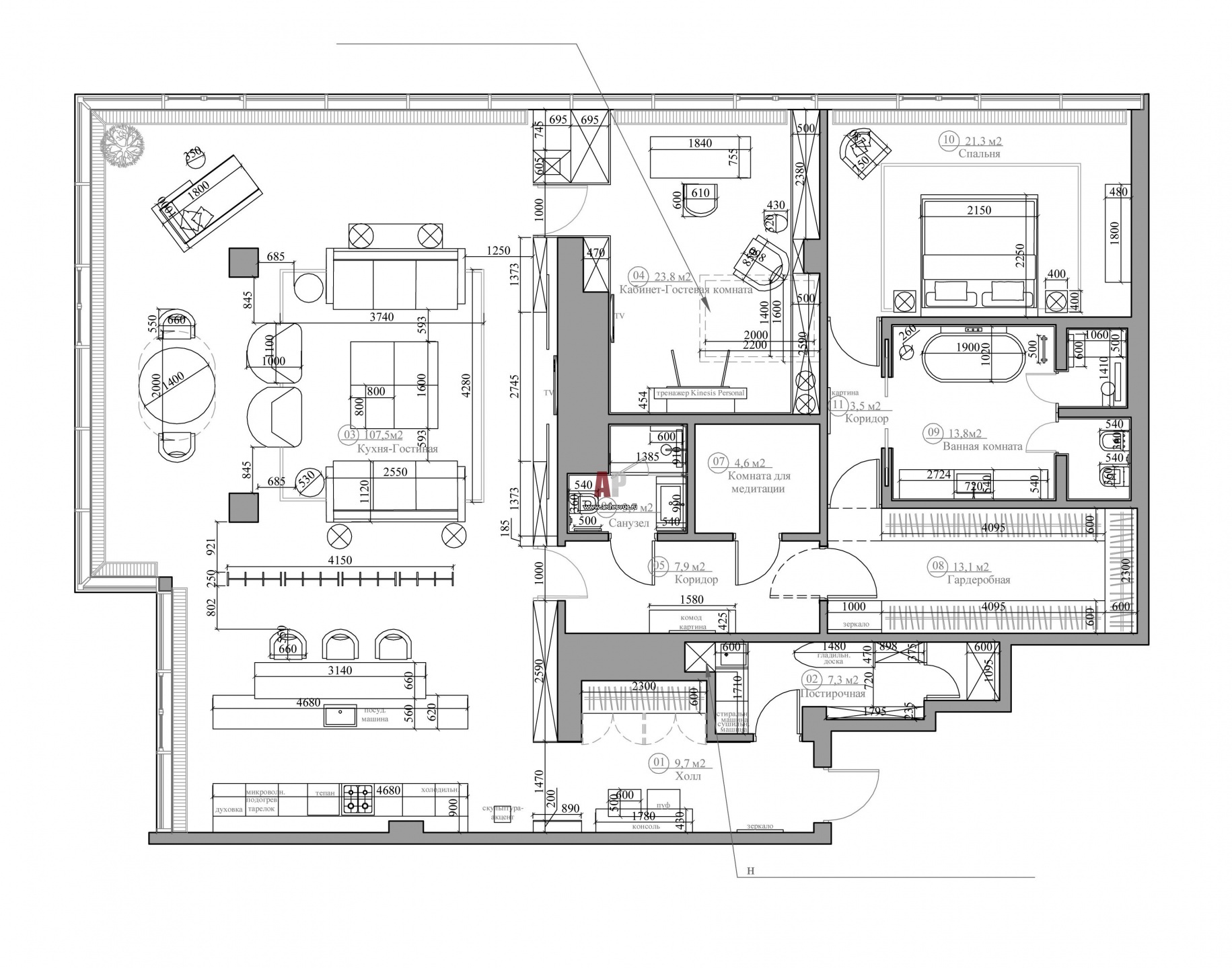
Планировка панорамной квартиры в ЖК «Легенда Цветного».

План пентхауса в высотке на Цветном бульваре для холостяка. Общая площадь – 220 кв. м.

Проект: Интерьер современного пентхауса на Цветном бульваре
Автор проекта: Ситникова Олеся
Соавтор(ы): Минина Татьяна
Объект: Функциональный пентхаус для холостяка
Общая площадь: 220 кв.м.