Закрыть галерею
Изображение 30 из 32

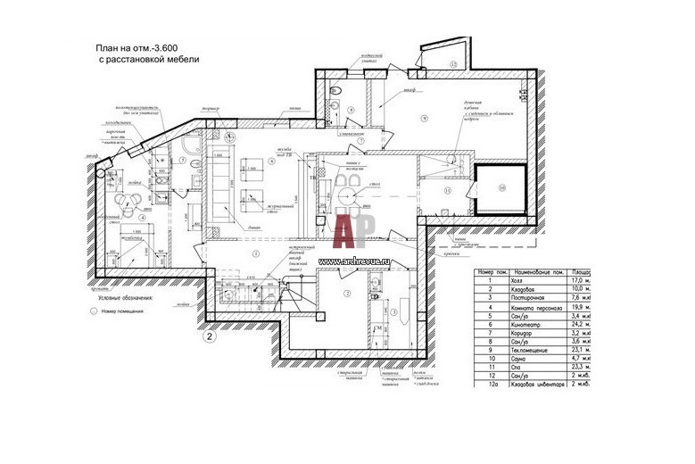
План цокольного этажа трехэтажного современного дома в Крыму. Общая площадь – 600 кв. м.

Планировка эксплуатируемого цоколя 3-х этажного дома на холме в долине Золотая Балка. 

Проект: Трехэтажный дом в Крыму с фактурными материалами и аутентичными деталями
Автор проекта: Попова Наталья
Объект: Белый дом в Балаклаве
Общая площадь: 600 кв.м.