Закрыть галерею
Изображение 29 из 30

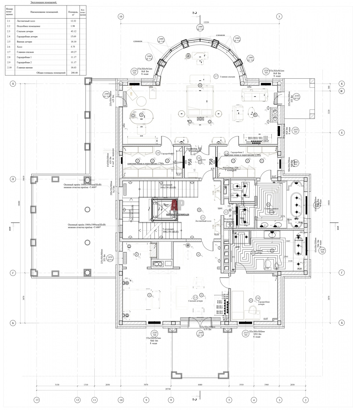
План 2 этажа 3-х этажного классического городского особняка для большой семьи.

План второго этажа трехэтажного частного дома в центре Санкт-Петербурга. Общая площадь – 1400 кв. м.

Проект: Английский интерьер частного дома 1400 кв. м в черте города
Автор проекта: Кушнарева-Леоне Ольга
Соавтор(ы): Понкратова Ксения
Объект: Роскошный частный особняк в центре Санкт-Петербурга
Общая площадь: 1400 кв.м.