Закрыть галерею
Изображение 47 из 47

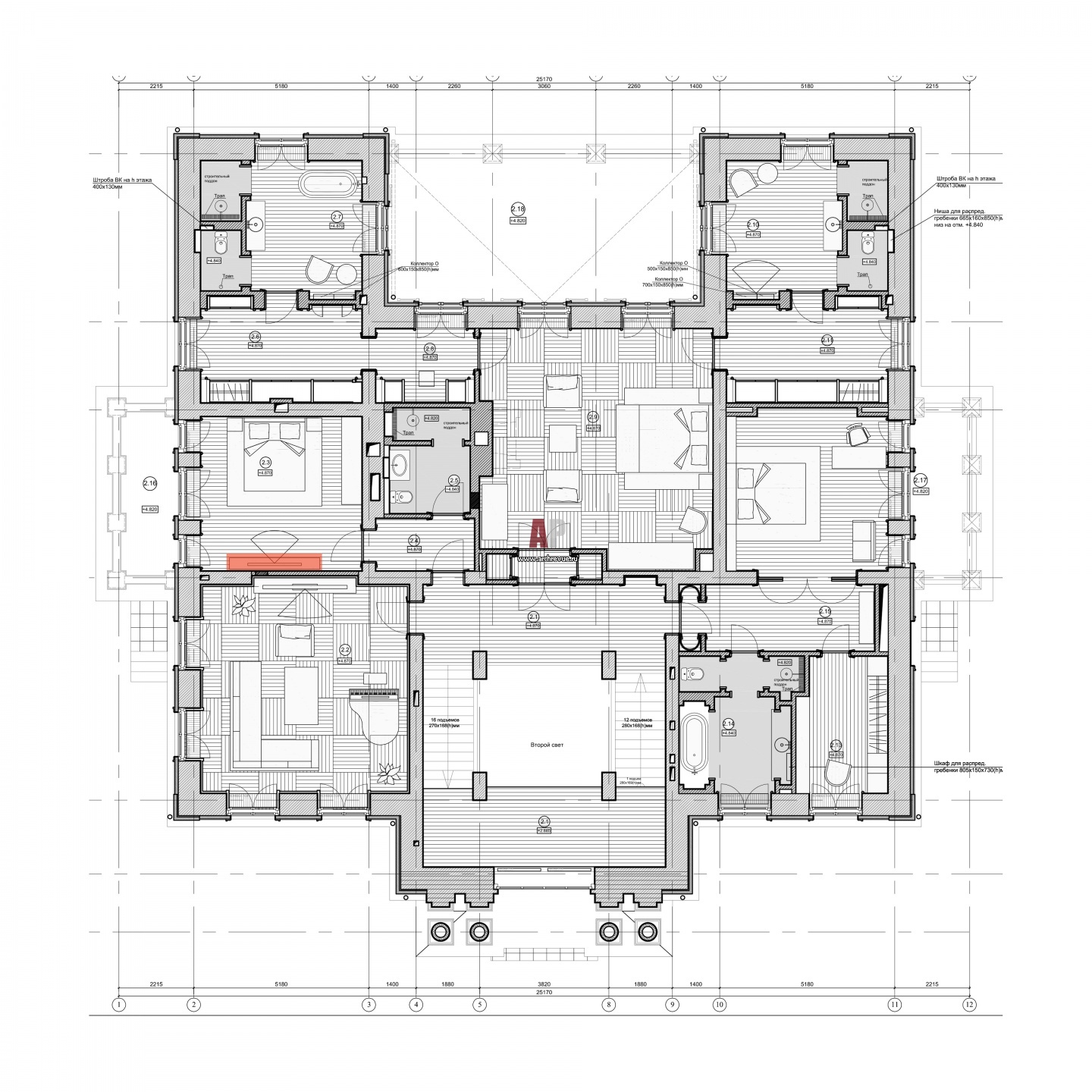
Планировка 2 этажа 2-х этажного традиционного дома в Подмосковье.

План второго этажа двухэтажного загородного дома с классической архитектурой. Общая площадь – 560 кв. м.

Проект: Родовое гнездо. Двухэтажный особняк в традиционном стиле
Автор проекта: Сохнюк Наталья, Морозова Елена
Соавтор(ы): Арзаманов Федор
Объект: Респектабельный дом в березовой роще
Общая площадь: 560 кв.м.