Закрыть галерею
Изображение 17 из 17

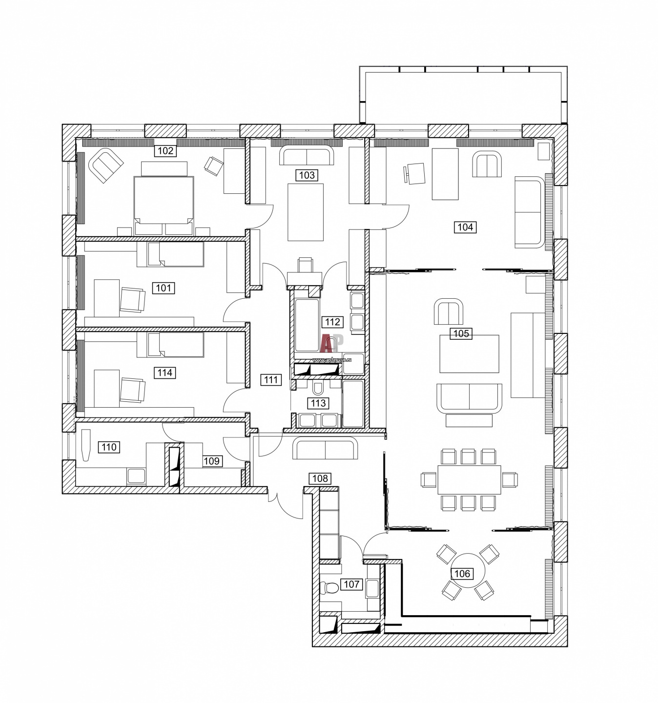
Планировка квартиры с панорамным остеклением и анфиладной общей зоной.

План квартиры с тремя спальнями. Общая площадь – 230 кв. м.

Проект: Квартира в стиле 1970-х годов в центре Москвы
Автор проекта: Волгина Елена
Соавтор(ы): Сударев Вадим
Объект: По следам Пита Мондриана
Общая площадь: 230 кв.м.