Закрыть галерею
Изображение 26 из 26

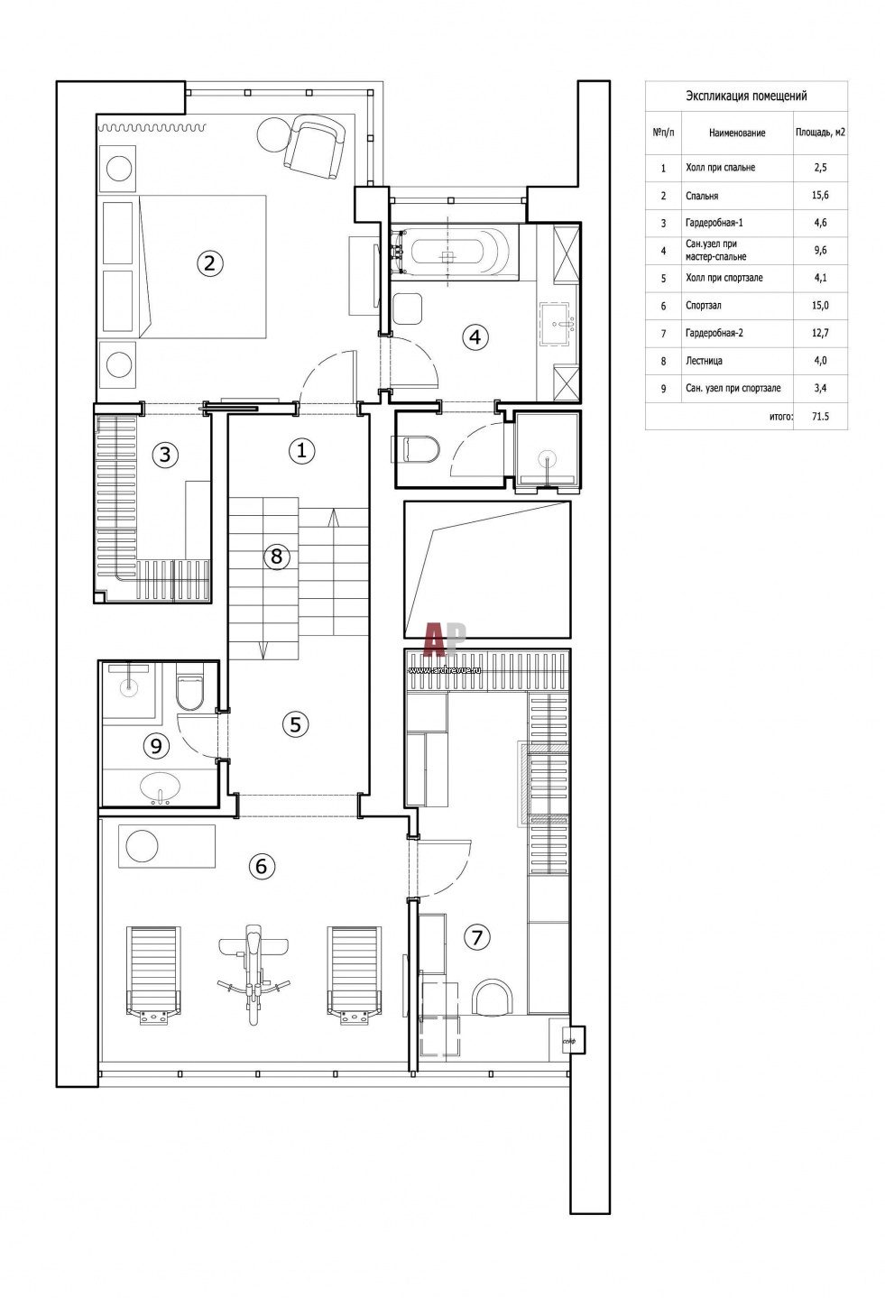
Планировка 3 этажа 3-х этажного танухауса в Барвихе.

План третьего этаж трехэтажного таунхауса в классическом стиле. Общая площадь – 220 кв. м.

Проект: Интерьер трехэтажного таунхауса с атмосферой загородного поместья
Автор проекта: Бурмакин Павел
Объект: Классический таунхаус в Барвихе
Общая площадь: 220 кв.м.