Закрыть галерею
Изображение 28 из 30

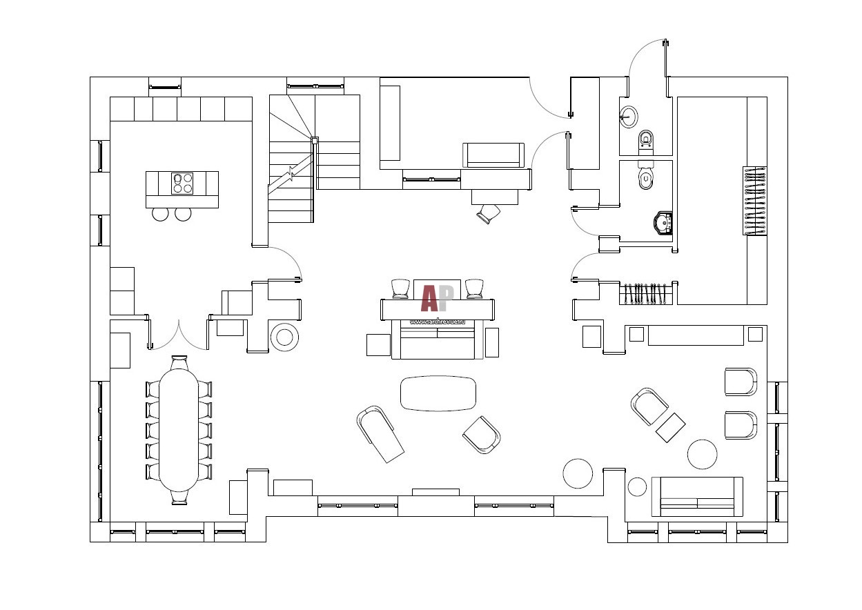
План первого этажа трехэтажного дома после реконструкции. Общая площадь - 450 кв. м.

Планировка 1 этажа 3-х этажного коттеджа в Снегирях. 

Проект: Семейный кирпичный дом с атмосферой старинного особняка
Автор проекта: Попова Наталья
Объект: Загородный дом в Снегирях
Общая площадь: 450 кв.м.