Закрыть галерею
Изображение 17 из 17

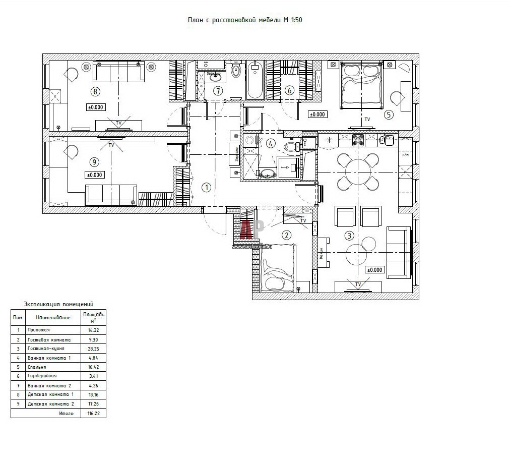
Планировка квартиры для семьи с двумя детьми в ЖК «Лефорт».

План квартиры с четырьмя спальнями, одна из которых – потайная. Общая площадь – 115 кв. м.

Проект: Интерьер квартиры с четырьмя спальнями в ЖК «Лефорт»
Автор проекта: Шабельникова Алиса
Объект: Квартира с тайной комнатой
Общая площадь: 115 кв.м.