Закрыть галерею
Изображение 17 из 18

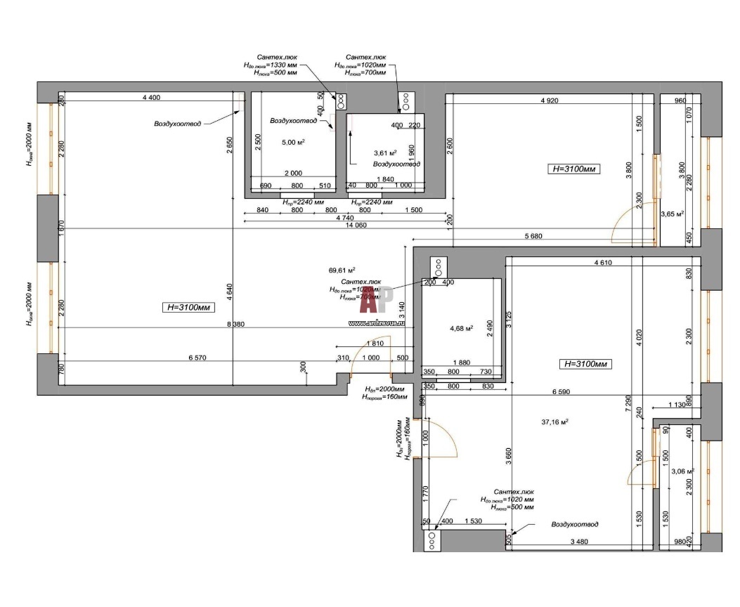
План квартиры для семьи с 2-мя детьми до перепланировки дизайнером.

Исходный план двух объединенных квартир в ЖК «Резиденция Сколково». Общая площадь – 126 кв. м.

Проект: Интерьер трехкомнатной квартиры в ЖК «Резиденции Сколково»
Автор проекта: Рублева Мария
Объект: Яркая квартира для семьи с двумя детьми
Общая площадь: 126 кв.м.