Закрыть галерею
Изображение 43 из 43

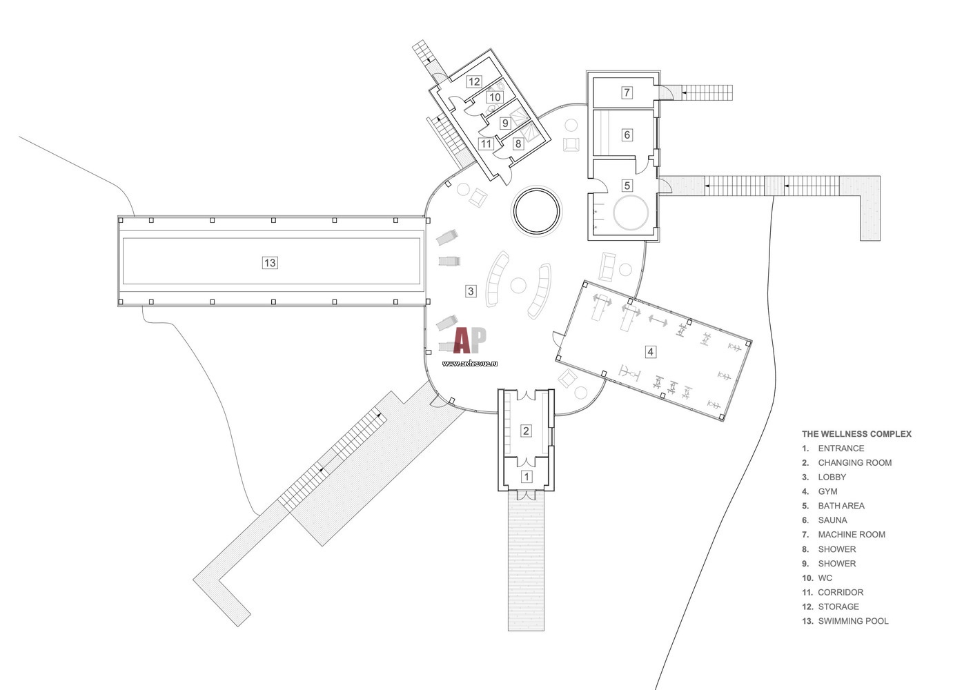
Усадьба Клаугис в Латвии. План СПА-комплекса.

Усадебный комплекс для семьи Петра Авена, Мадонна, Латвия. Планировка здания СПА-комплекса. 

Проект: Современная деревянная усадьба на берегу двух озер
Автор проекта: Кузембаев Тотан
Объект: Усадьба Клаугис в Латвии
Общая площадь: 4000 кв.м.