Закрыть галерею
Изображение 21 из 22

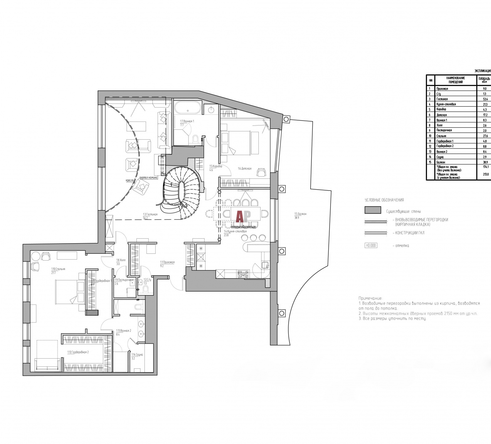
Планировка 1 этажа квартиры со вторым светом в гостиной.

План первого этажа двухэтажной квартиры в центре Москвы. Общая площадь - 249,8 кв. м.

Проект: Интерьер двухэтажной классической квартиры с декоративными витражами
Автор проекта: Пшеничников Дмитрий
Соавтор(ы): Ли Ольга, Богомолова Алена, Соколова Мария, Морозова Екатерина, Николаева Ксения
Объект: Классическая квартира в светлой гамме
Общая площадь: 249,8 кв.м.