Закрыть галерею
Изображение 33 из 35

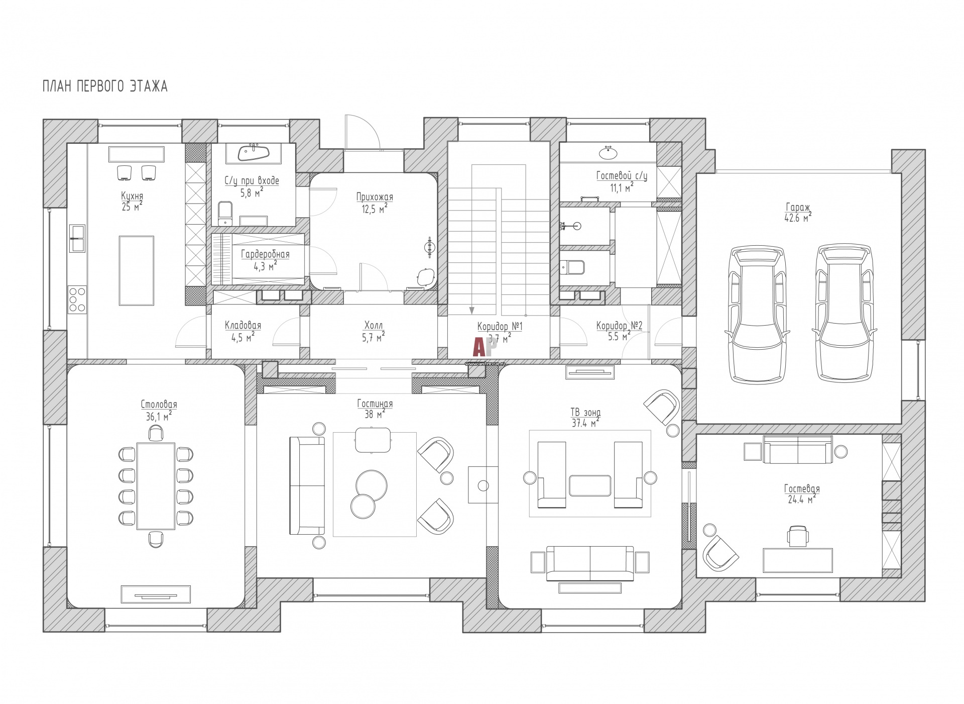
Планировка 1 этажа 3-х этажного дома для семьи с тремя детьми.

План первого этажа трехэтажного дома для продажи. Общая площадь – 850 кв. м.

Проект: Интерьер трехэтажного дома с мягкими красками и теплыми фактурами
Автор проекта: Учаева Елена
Объект: Дом в Подмосковье для большой семьи
Общая площадь: 850 кв.м.