Закрыть галерею
Изображение 26 из 26

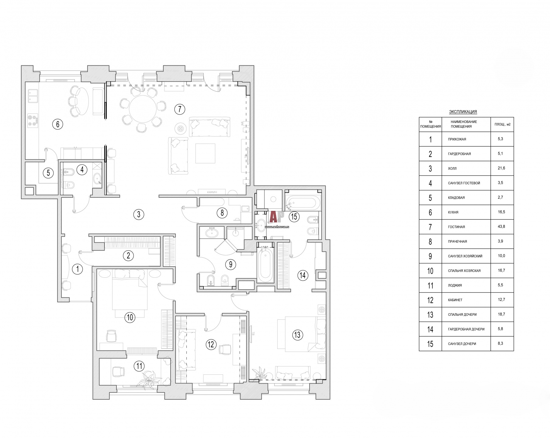
Планировка семейной квартиры в ЖК «Итальянский квартал» с тремя санузлами и общей парадной гостиной.

План 4-х комнатной квартиры для приемов и временного проживания. Общая площадь – 183 кв. м.

Проект: Интерьер представительской квартиры в итальянском стиле
Автор проекта: Маркос Юлия
Объект: Итальянская квартира в Москве
Общая площадь: 183 кв.м.