Закрыть галерею
Изображение 30 из 30

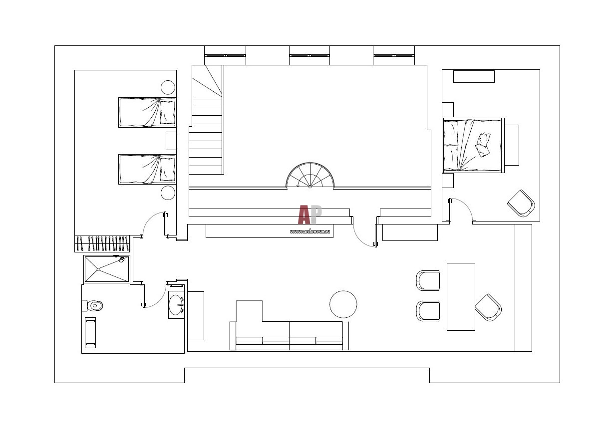
План мансардного этажа трехэтажного дома после реконструкции. Общая площадь - 450 кв. м.

Планировка мансарды 3-х этажного коттеджа в Снегирях. 

Проект: Семейный кирпичный дом с атмосферой старинного особняка
Автор проекта: Попова Наталья
Объект: Загородный дом в Снегирях
Общая площадь: 450 кв.м.