Закрыть галерею
Изображение 44 из 44

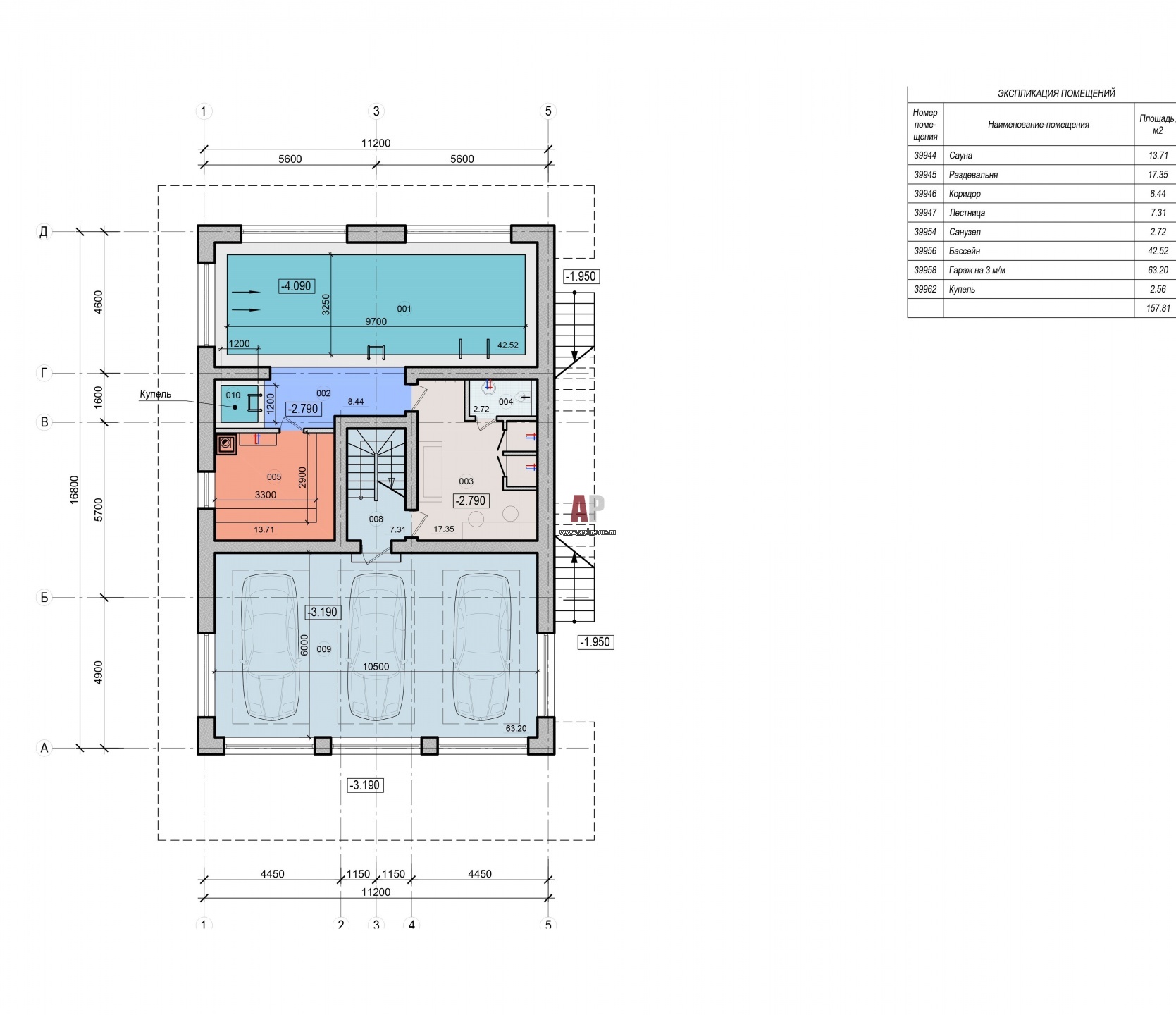
Планировка цоколя деревянного дома. Общая высота: 5 этажей – 2 цокольных и 3 надземных этажа.

План цоколя пятиэтажного дома из кело. Общая площадь – 1054 кв. м. Жилая площадь – 700 кв. м. Высота дома от нулевой отметки в коньке 13.000 и -5600 вниз.

Проект: Пятиэтажный коттедж из оцилиндрованного крупнокалиберного бревна кело
Автор проекта: Галушко Андрей
Объект: Современный дом из кело под Санкт-Петербургом
Общая площадь: 1054 кв.м.