Закрыть галерею
Изображение 16 из 17

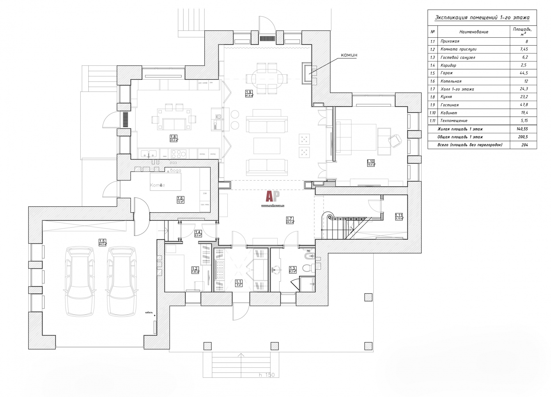
Планировка 1 этажа 2-х этажного дома в стиле современной классики.

План первого этажа двухэтажного дома в поселке «Миллениум Парк». Общая площадь – 460 кв. м.

Проект: Двухэтажный классический дом в поселке «Миллениум Парк» с делфтскими изразцами
Автор проекта: Макурина Алина
Объект: Светлый дом с изразцовой печью
Общая площадь: 460 кв.м.