Закрыть галерею
Изображение 37 из 37

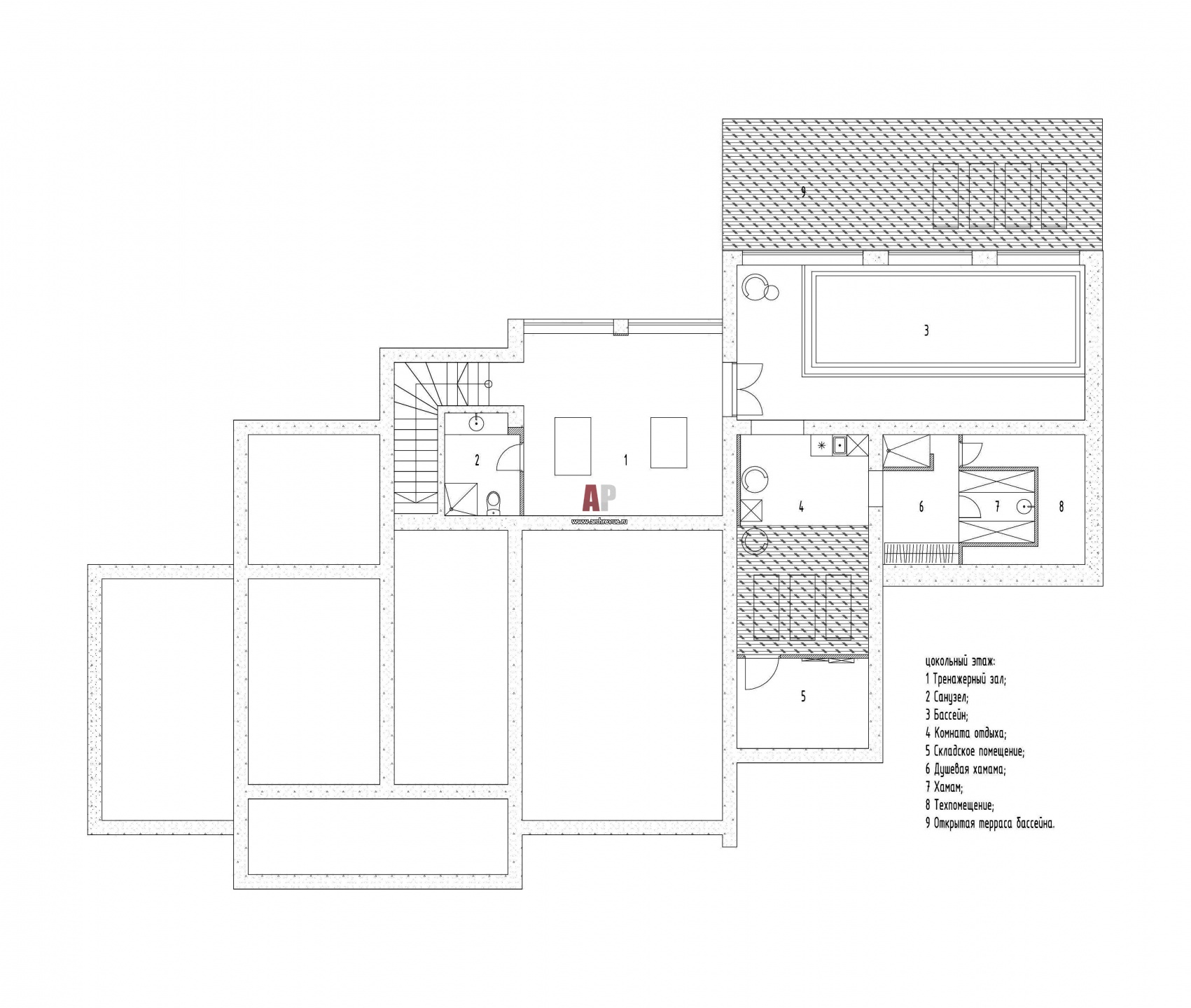
Планировка нижнего этажа 3-х этажного шале со СПА и бассейном.

План цокольного этажа трехэтажного шале в Подмосковье. Общая площадь - 650 кв. м.

Проект: Дом у реки с элементами шале, лофта и русского фольклора
Автор проекта: Шевченко Ирина
Объект: Необычное шале в Подмосковье
Общая площадь: 650 кв.м.