Закрыть галерею
Изображение 21 из 21

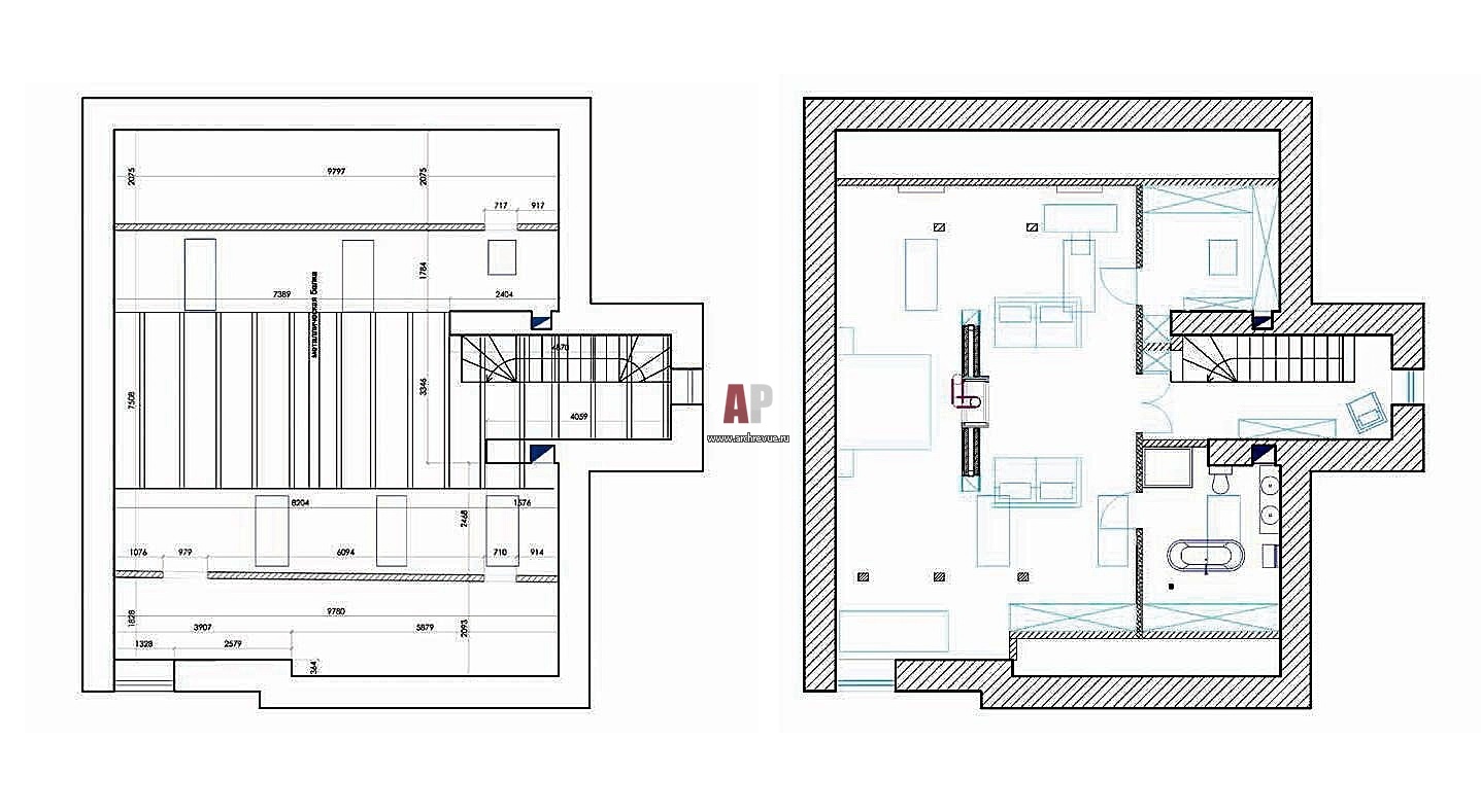
План мансарды 3-х этажного таунхауса до и после перепланировки.

План мансардного этажа семейного таунхауса до и после реконструкции. Дизайнер - Кира Чувелева.

Проект: Таунхаус в Подмосковье в тосканском стиле
Автор проекта: Чувелева Кира
Объект: Под солнцем Тосканы
Общая площадь: 320 кв.м.