Закрыть галерею
Изображение 15 из 15

Вариант планировки квартиры до 160 кв. м с небольшой плоскостью остекления.

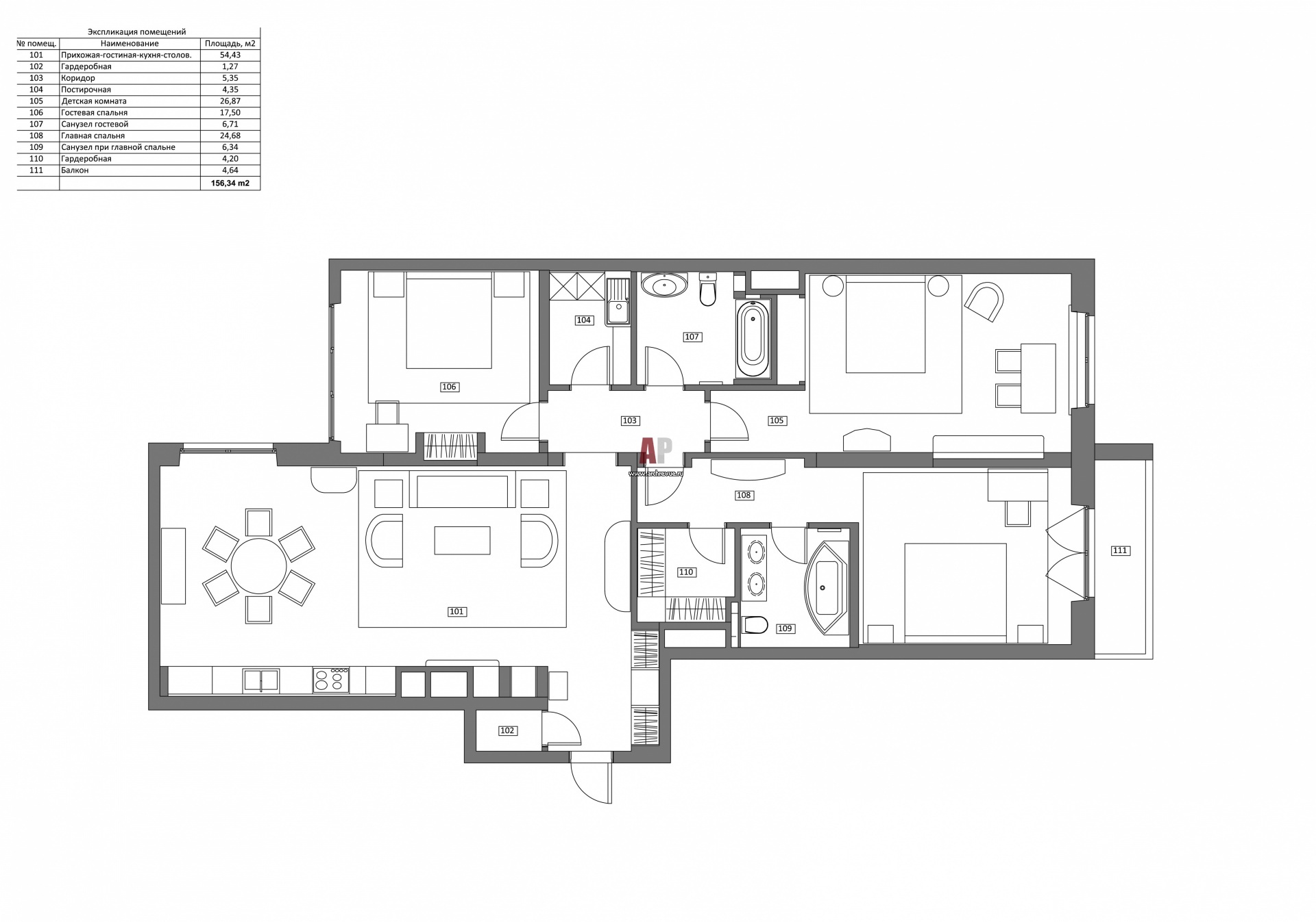
План 4-х комнатной квартиры 156 кв. м.

Проект: Неоклассическая квартира карамельно-кофейного цвета с тремя спальнями
Автор проекта: Франчян Елена, Матвеев Борис
Объект: Квартира цвета капучино
Общая площадь: 160 кв.м.