Закрыть галерею
Изображение 20 из 21

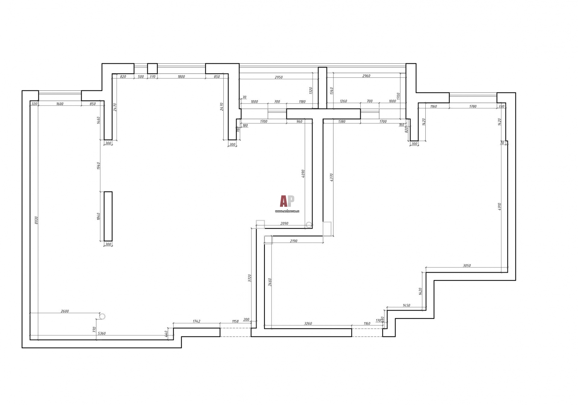
Исходная планировка семейной квартиры.

Обмерочный план квартиры 136 кв. м, созданной в результате объединения двух соседних.

Проект: Семейная квартира с английским колоритом
Автор проекта: Нагаева Алена, Минчева Елена
Объект: Тактильная квартира в Москве
Общая площадь: 136 кв.м.