Закрыть галерею
Изображение 13 из 13

Планировка небольшой квартиры в небоскребе Capital Towers

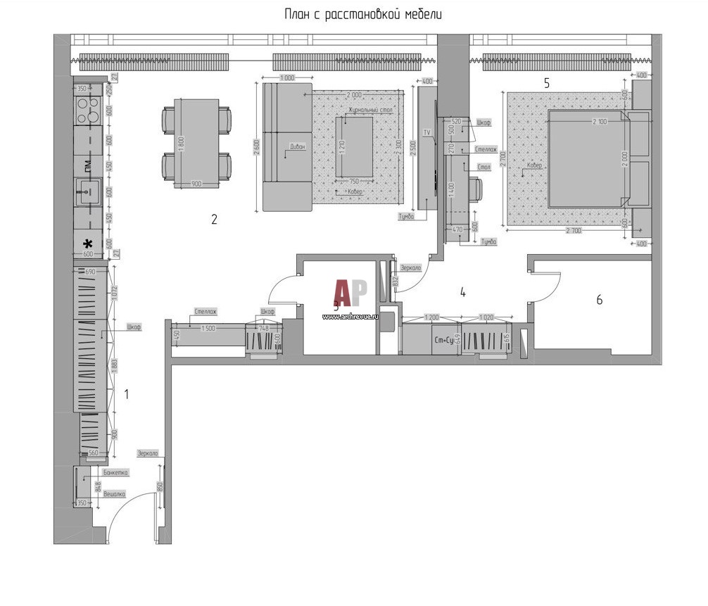
План 2-х комнатной квартиры, 75 кв. м. 

Проект: Свободное парение. Небольшая квартира на 37-м этаже высотки Capital Towers
Автор проекта: Раевская Анна
Объект: Современная квартира с эстетикой ваби-саби
Общая площадь: 75 кв.м.