Закрыть галерею
Изображение 19 из 20

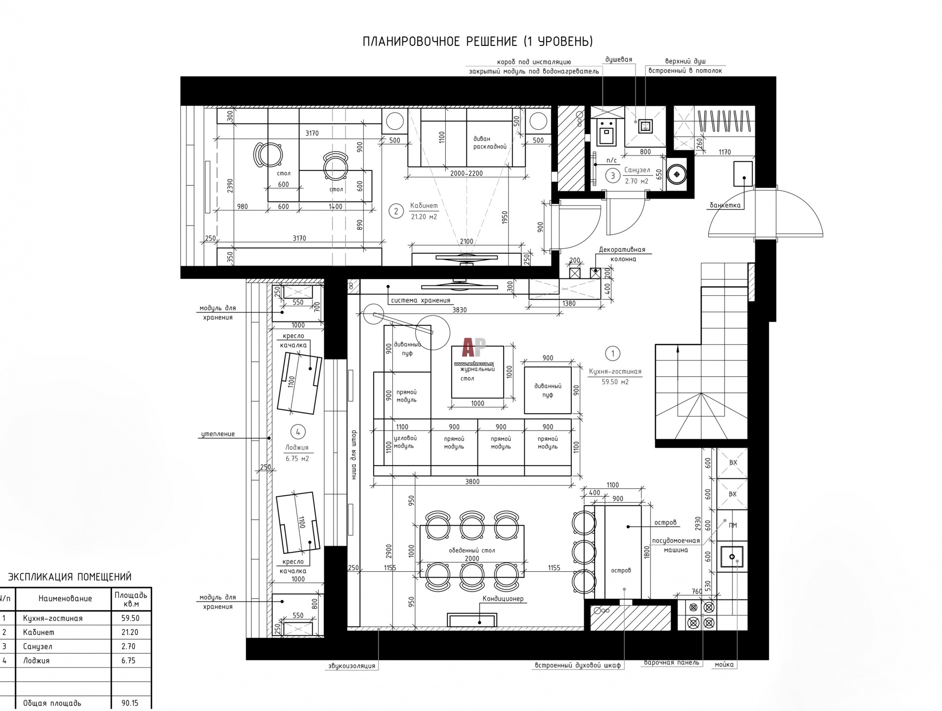
Планировка 1 этажа 2-х этажного пентхауса для семьи с детьми в Москве.

План первого этажа двухэтажной квартиры на 24 этаже новой высотки. Общая площадь – 188 кв. м.

Проект: Интерьер современной двухэтажной квартиры в Москве
Автор проекта: Соколов Кирилл
Объект: Светлый пентхаус в высотке
Общая площадь: 180 кв.м.