Закрыть галерею
Изображение 19 из 19

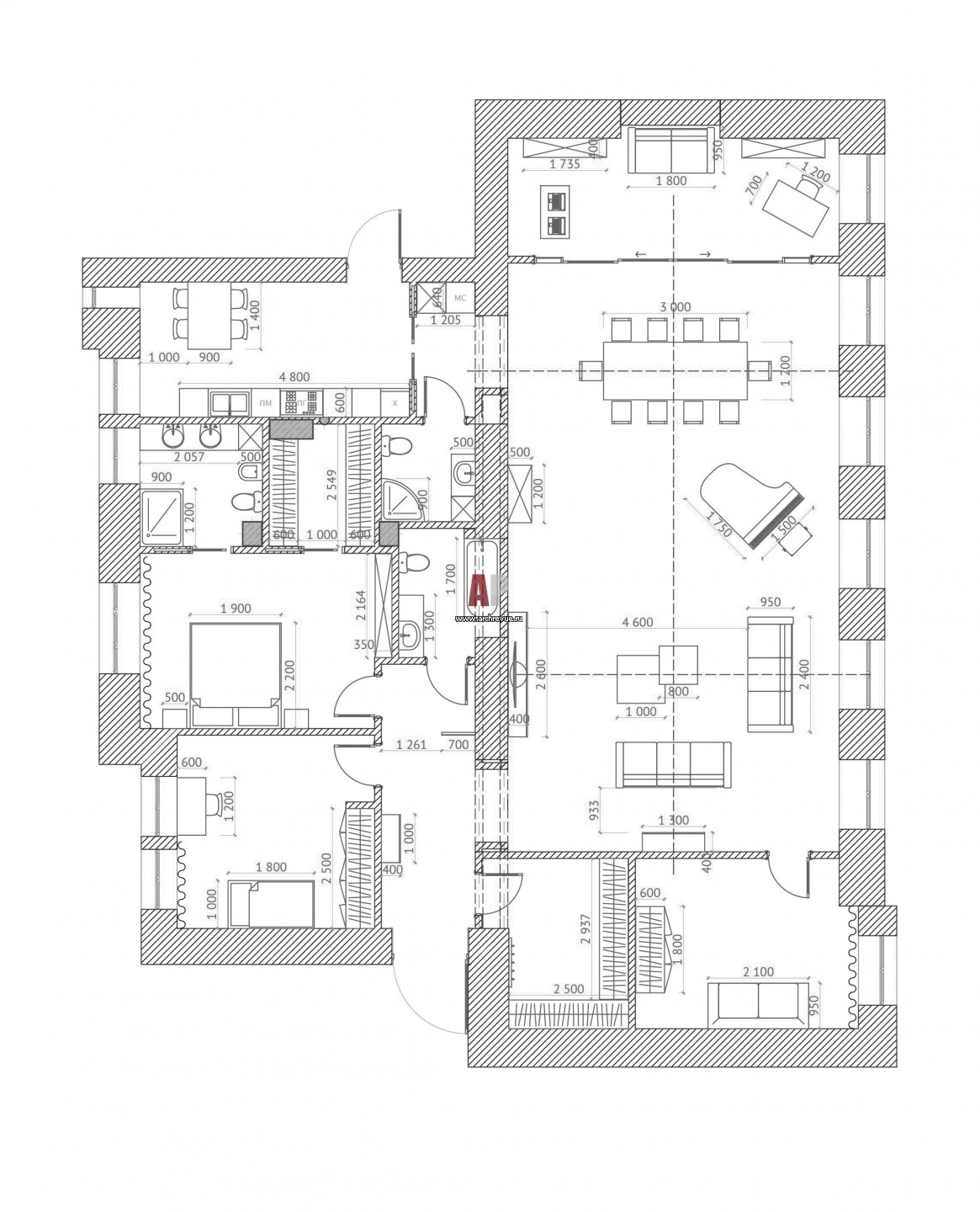
План квартира с гостиной-салоном в дореволюционном доме. Общая площадь – 220 кв. м.

Планировка большой квартиры для творческой семьи в историческом особняке на Солянке, 220 кв. м. 

Проект: Интерьер квартиры с музыкальным салоном
Автор проекта: Кларк Анна
Объект: Квартира в историческом доме на Солянке
Общая площадь: 220 кв.м.