Закрыть галерею
Изображение 33 из 33

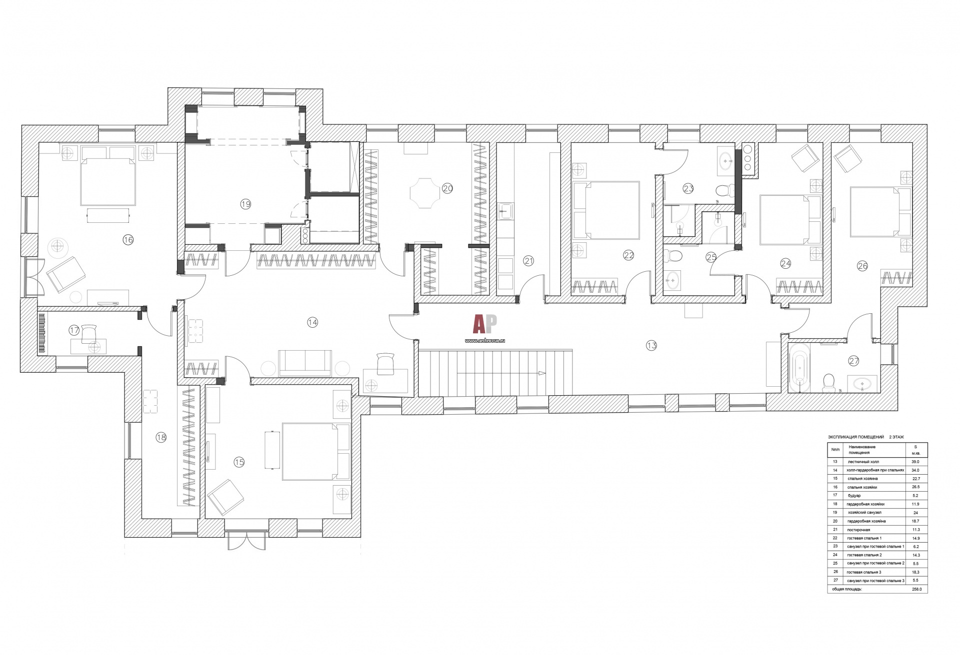
Планировка 2 этажа 2-х этажного семейного дома в Аносово.

План второго этажа двухэтажного дома на Новорижском шоссе. Общая площадь – 495 кв. м.

Проект: Камерный особняк с элементами американской классики
Автор проекта: Мироненко Мария
Объект: Традиционный дом в Аносино
Общая площадь: 495 кв.м.