Закрыть галерею
Изображение 14 из 14

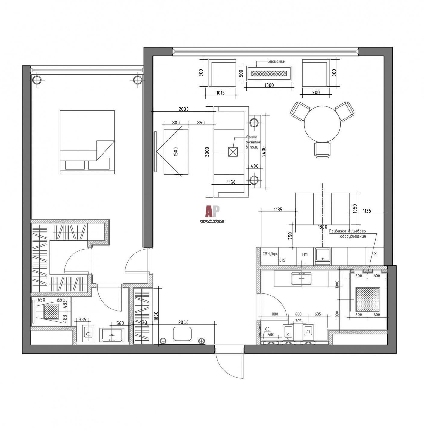
Планировка небольшой 2-х комнатной квартиры на предпоследнем этаже новой панорамной высотки.

План двухкомнатной квартиры в высотке на Мосфильмовской. Общая площадь – 103 кв. м.

Проект: Современная двухкомнатная квартира в высотке на Мосфильмовской
Автор проекта: Мерзлякова Анастасия
Объект: Элегантный минимализм на Мосфильмовской
Общая площадь: 103 кв.м.